248 700€ (TVA 20%)
218 649€ (TVA 5.5%)
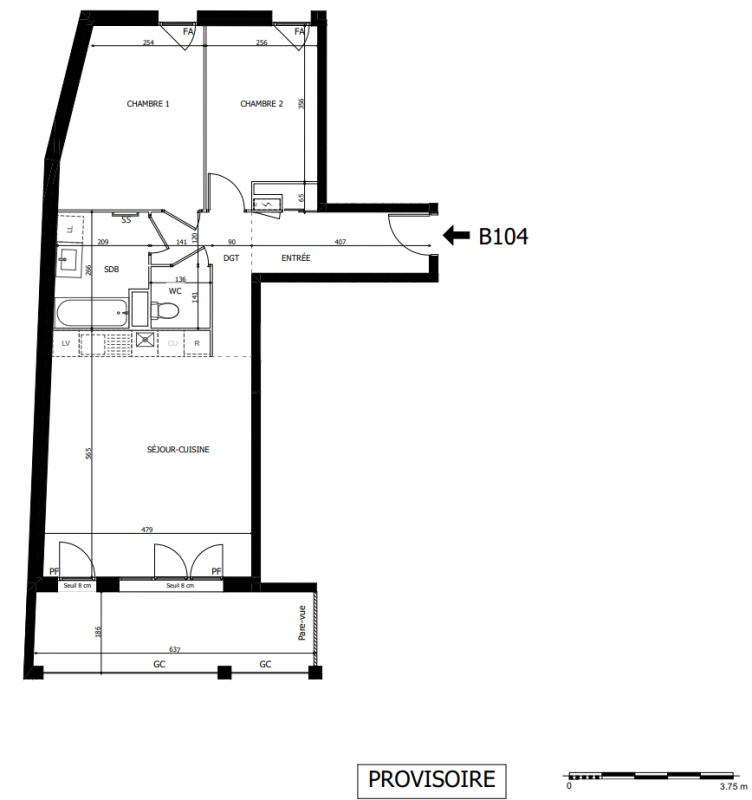
Appt. au 1er
T3
66.73 m²
Sud
Valence (26000)
1er trimestre 2028
01 81 80 39 10
Présentation du programme "Programme neuf Valence (26000)"
Baisse de prix & Démarrage des travaux à VALENCE ! Devenez propriétaire de votre appartement neuf pour le même prix que votre loyer grâce à la TVA réduite à 5,5%! Nichée au cœur de la vallée du Rhône, Valence est une ville à taille humaine qui offre une atmosphère conviviale, alliant dynamisme urbain et douceur de vivre provençale, tout en bénéficiant de la proximité avec les grandes métropoles. L'autoroute A7 permet de rejoindre Lyon en moins d'une heure, tandis que l'A9 et la Nationale 7 facilitent les déplacements vers les villes du sud. En termes de transports, la gare TGV située à seulement 6 minutes à pied* offre des liaisons directes vers les principales villes de France. Le réseau de bus Citéa permet quant à lui une circulation fluide à travers l’agglomération valentinoise et ses alentours.Idéalement situé, le centre-ville se trouve à seulement 6 minutes* en voiture de notre projet et bénéficie d’un emplacement stratégique avec un accès direct à tous les services essentiels : établissements scolaires (de l’élémentaire à l’université), commerces, restaurants..Notre résidence se compose d'appartements allant du 2 au 4 pièces et de 4 maisons 5 pièces. Tous les logements sont prolongés par un espace extérieur privatif et dotés d’un parking en sous-sol. Le cœur de notre projet : un magnifique îlot paysager, véritable havre de paix arboré, surmonté d'un cèdre centenaire, qui confère à notre résidence un caractère unique et authentique.Contactez vite un de nos conseillers pour découvrir tous nos appartements neufs et pour concrétiser votre projet immobilier à Valence
Autres logements T3 du programme "Programme neuf Valence (26000)"
| Disponibilité | Prix | No | Genre | Pièces | Surface | Étage | Disponibilité | Prix | ||
|---|---|---|---|---|---|---|---|---|---|---|
| Voir | Disponible | 228 700€ | A107 | Appt. | T3 | 59.47m2 | 1er | Disponible | 228 700€ | Voir |
| Voir | Disponible | 242 800€ | A405 | Appt. | T3 | 59.49m2 | 4ème | Disponible | 242 800€ | Voir |
| Voir | Disponible | 240 500€ | B101 | Appt. | T3 | 64.89m2 | 1er | Disponible | 240 500€ | Voir |
| Voir | Disponible | 245 200€ | B201 | Appt. | T3 | 64.89m2 | 2ème | Disponible | 245 200€ | Voir |
| Voir | Disponible | 253 500€ | B204 | Appt. | T3 | 66.73m2 | 2ème | Disponible | 253 500€ | Voir |
| Voir | Disponible | 249 900€ | B301 | Appt. | T3 | 64.89m2 | 3ème | Disponible | 249 900€ | Voir |
| Voir | Disponible | 211 600€ | B302 | Appt. | T3 | 58.84m2 | 3ème | Disponible | 211 600€ | Voir |
| Voir | Disponible | 258 200€ | B304 | Appt. | T3 | 66.73m2 | 3ème | Disponible | 258 200€ | Voir |
| Voir | Disponible | 254 600€ | B401 | Appt. | T3 | 64.93m2 | 4ème | Disponible | 254 600€ | Voir |
| Voir | Disponible | 241 000€ | B402 | Appt. | T3 | 58.98m2 | 4ème | Disponible | 241 000€ | Voir |
| Voir | Disponible | 262 900€ | B404 | Appt. | T3 | 67.04m2 | 4ème | Disponible | 262 900€ | Voir |
| Voir | Disponible | 238 100€ | A307 | Appt. | T3 | 59.49m2 | 3ème | Disponible | 238 100€ | Voir |
| Voir | Disponible | 260 300€ | A205 | Appt. | T3 | 63.6m2 | 2ème | Disponible | 260 300€ | Voir |