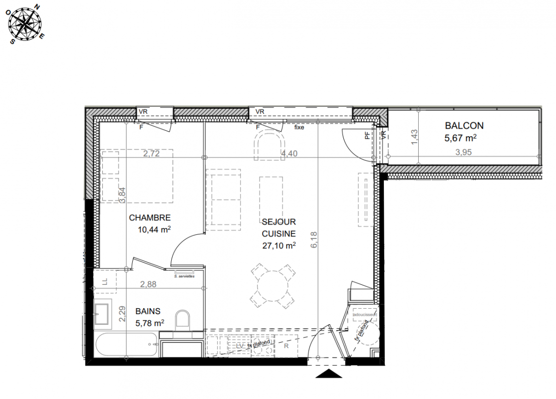
Prix
231 500€
Type
Appt. au 1er
Pièces
T2
Surface
43.32 m²
Exposition
-
Ville
Brenthonne (74890)
Livraison
3ème trimestre 2027
Informations
01 81 80 39 10

Présentation du programme "L'Orée"

Prochainement, 6 maisons 5P avec jardins et 16 appartements du 2 au 5P.

Autres logements T2 du programme "L'Orée"

Disponibilité Prix Genre Pièces Surface Étage
Voir
Disponible
222 500€ Appt. T2 43.3m2 1er
Voir
Optionné
234 500€ Appt. T2 43.31m2 2ème
DO NOT CLICK