Prix
257 000€
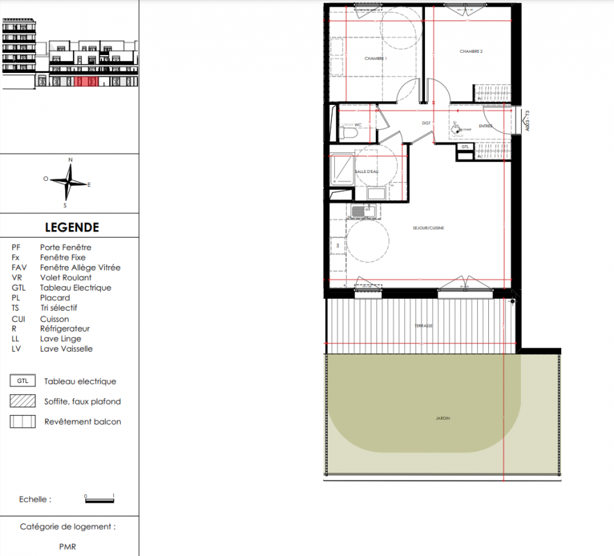
Type
Appt. au 0-RDC
Pièces
T3
Surface
62.36 m²
Exposition
Sud
Ville
Fontaine (38600)
Livraison
4ème trimestre 2028
Informations
01 81 80 39 10

Présentation du programme "Sourcea"

La résidence Sourcea s’inscrit dans le quartier des Portes du Vercors, le long de la rue du Colonel Manhès. Elle se compose de deux bâtiments collectifs en R 5 et de logements intermédiaires en R 2 à R 3, avec une architecture contemporaine, sobre et élégante. Elle propose 36 logements en accession libre, du 2 au 5 pièces. Les appartements bénéficient de volumes généreux, d’une double orientation ou d’une configuration traversante et d’espaces extérieurs variés. Le cœur d’îlot végétalisé, pensé comme un jardin partagé, offre un lien direct avec la nature.Quartier jardin au cœur de Fontaine, avec vues sur les massifs environnants Appartements lumineux, traversants ou bi-orientés Jardin partagé avec bacs potagers, assises ombragées et noue paysagère Espaces extérieurs variés : balcons, terrasses, jardins privatifs Architecture bioclimatique et matériaux durablesAppartements : Typologies du 2 au 5 pièces Cuisine et séjour formant un espace de vie principal spacieux Isolation phonique renforcéeChauffage par géothermie Celliers pratiques en rez-de-chaussée Parking en sous-sol Grand local vélos Espaces extérieurs : Jardin partagé avec bacs potagers et mobilier convivial Noue paysagère pour la gestion des eaux pluviales Végétalisation abondante avec essences locales et non allergisantes Toitures végétalisées et panneaux photovoltaïquesÀ proximité de la résidence à pied : Arrêt de bus « Gérard Philipe » à 210 m Tram A à 650 m (arrêt Charles Michels) Pôle multimodal « La Poya » à 700 m Commerces, supermarché, cinéma et restaurants accessibles à pied Établissements scolaires à distance piétonne En train : Gare de Grenoble à 4,3 km Lyon Part-Dieu en 1h23 Paris Gare de Lyon en 3h34 via Valence TGV En voiture : Grenoble à 3 km Lyon à 110 km Genève à 155 km

Autres logements T3 du programme "Sourcea"

Disponibilité Prix Genre Pièces Surface Étage
Voir
Disponible
243 000€ Appt. T3 64.32m2 1er
Voir
Disponible
248 000€ Appt. T3 64.35m2 2ème
Voir
Disponible
246 000€ Appt. T3 61.32m2 3ème
Voir
Disponible
263 000€ Appt. T3 66.15m2 3ème
Voir
Disponible
256 000€ Appt. T3 64.29m2 3ème
Voir
Disponible
244 000€ Appt. T3 61.35m2 4ème
Voir
Disponible
275 000€ Appt. T3 66.15m2 4ème
Voir
Disponible
268 000€ Appt. T3 64.32m2 4ème
Voir
Disponible
249 000€ Appt. T3 61.35m2 5ème
Voir
Disponible
282 000€ Appt. T3 66.14m2 5ème
Voir
Disponible
278 000€ Appt. T3 64.37m2 5ème
Voir
Disponible
255 000€ Appt. T3 62.88m2 0-RDC
Voir
Disponible
257 000€ Appt. T3 62.94m2 0-RDC
Voir
Disponible
255 000€ Appt. T3 62.36m2 0-RDC
Voir
Disponible
257 000€ Appt. T3 62.73m2 1er
Voir
Disponible
257 000€ Appt. T3 62.45m2 1er
Voir
Disponible
257 000€ Appt. T3 62.45m2 1er
Voir
Disponible
257 000€ Appt. T3 62.45m2 1er
DO NOT CLICK