12 520€
205 015€
- €
Type
Appt. au 2ème
Pièces
Studio
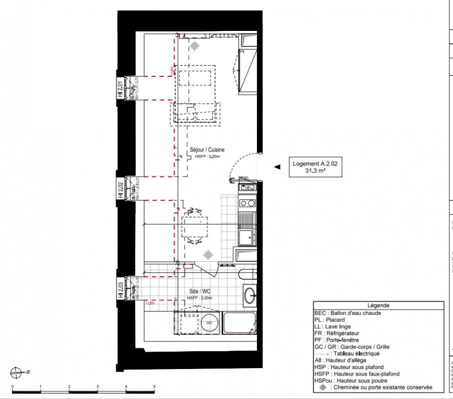
Surface
31.3 m²
Exposition
-
Ville
Guingamp (22200)
Livraison
4ème trimestre 2028
Informations
01 81 80 39 10

Présentation du programme "Un Château en Bretagne"

Guingamp
Au coeur de la Bretagne, Guingamp est une ville d’histoire. En plein centre de la ville, la place du Martray est bordée de maisons à pans de bois et de portes sculptées de la Renaissance, témoins d’un riche passé et typique de l’architecture locale. Le château fort médiéval Pierre II du XIème siècle, majestueux, domine la ville et raconte ses heures de gloire.

Un Château en Bretagne
Né au XVe siècle et sublimé à la Renaissance, ce joyau d’architecture en granit et schiste séduit par son élégante silhouette en L et sa tour colombier du XVIIe siècle. Ancienne propriété de prestigieuses familles nobles, il est aujourd’hui reconnu pour son caractère unique, inscrit à l’inventaire des Monuments Historiques.

Ce bâtiment prestigieux, ancien témoin de l’histoire locale, bénéficiera d'une restauration minutieuse afin de donner naissance à 22 appartements haut de gamme.
Les aménagements préservent les éléments historiques remarquables tels que les sols patrimoniaux, les cheminées en marbre et les décors classés, tout en intégrant le confort moderne.
Implanté dans un parc arboré, le château allie patrimoine et modernité et offre aux futurs résidents un cadre de vie unique et prestigieux au cœur de Guingamp. Chacun des lots est vendu avec une place de stationnement, certains bénéficieront d'un jardin extérieur et d'une cave.

La ville
L’agglomération Guingamp-Paimpol, qui compte environ 70 000 habitants, représente un territoire de taille moyenne au sein de la Bretagne.
L’attractivité résidentielle se concentre principalement sur les villes de Guingamp et Paimpol, qui jouent un rôle central et exercent une influence sur les petites communes environnantes, créant ainsi une polarisation de l’habitat et des services vers ces deux pôles principaux.
Elle constitue le centre d’une petite unité urbaine propre, qui regroupe plusieurs communes autour de la ville et sert de pôle local pour les services, le commerce et l’administration.

Guingamp, est aussi une ville animée et accueillante, avec de nombreux commerces de proximité, des marchés et une vie culturelle riche. Familles, actifs, étudiants et passionnés de sport s’épanouissent dans cette ville à taille humaine, où l’ambiance conviviale est portée par la ferveur du célèbre club de football En Avant Guingamp.

Visualisez la vidéo : Ici

Travaux éligibles : Monuments Historiques et déficit foncier

Autres logements Studio du programme "Un Château en Bretagne"

Disponibilité Prix Genre Pièces Surface Étage
Voir
Disponible
245 605€ Appt. Studio 33.9m2 2ème
Voir
Disponible
321 360€ Appt. Studio 44.8m2 1er
Voir
Disponible
374 518€ Appt. Studio 52.6m2 1er
Voir
Optionné
258 115€ Appt. Studio 35.7m2 0-RDC
Voir
Disponible
408 475€ Appt. Studio 57.5m2 0-RDC
Voir
Optionné
237 960€ Appt. Studio 32.8m2 2ème
Voir
Disponible
257 420€ Appt. Studio 35.6m2 2ème
Voir
Disponible
276 880€ Appt. Studio 38.4m2 2ème
DO NOT CLICK