Prix
201 000€
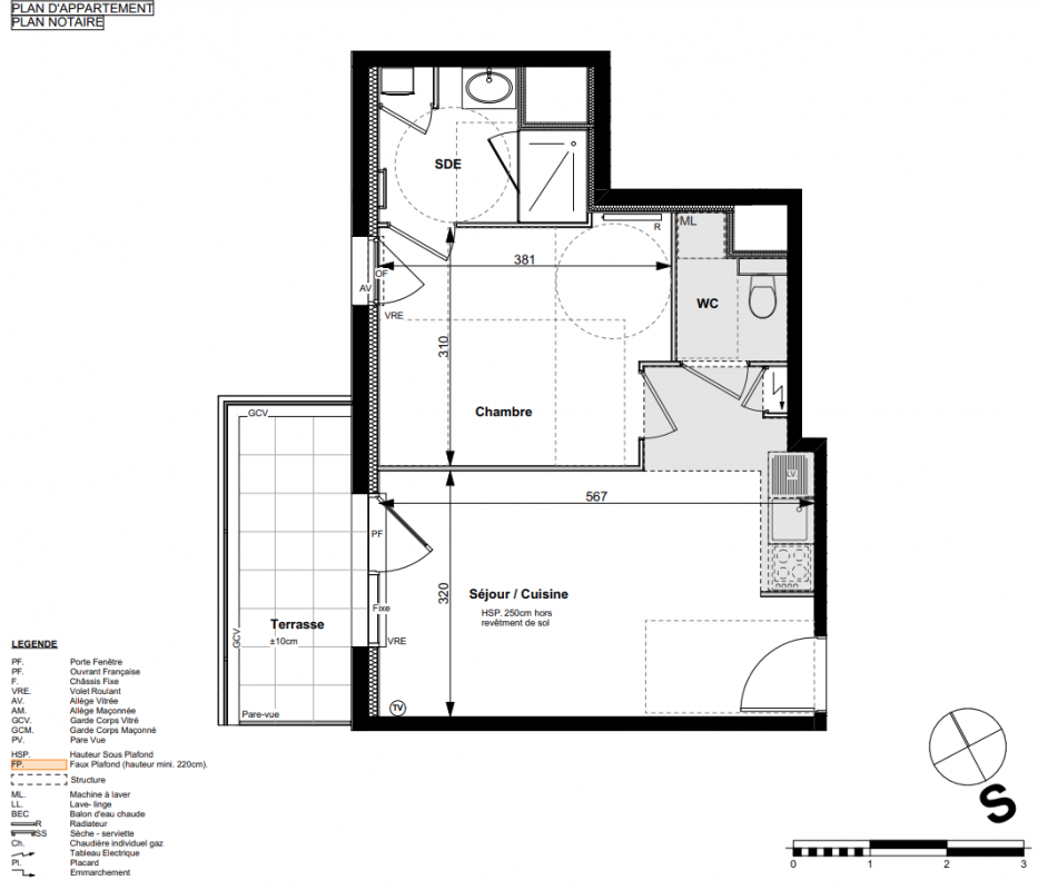
Type
Appt. au 0-RDC
Pièces
T2
Surface
39.08 m²
Exposition
-
Ville
Le Rheu (35650)
Livraison
2ème trimestre 2026
Informations
01 81 80 39 10

Présentation du programme "NYMPHE"

[ - NOUVEAU - ] LE RHEU. Commune à l'ouest de Rennes, découvrez nos appartements du 2 au 4 pièces éligibles au dispositif PINEL, et bénéficiez ainsi d'une réduction d'impôt jusqu'à 52 500 €. Les appartements du programme neuf NYMPHE vous offrent de belles expositions et se prolongent tous d’un espace extérieur, conçu avec soin. Au coeur du centre bourg, vous profitez d’un cadre de vie agréable et confortable, avec un accès immédiat aux commerces, aux écoles et aux infrastructures sportives. Pour en savoir sur les appartements neufs de la résidence NYMPHE, contactez nos conseillers Lamotte à Rennes ou rendez-vous sur notre site Lamotte.fr

Autres logements T2 du programme "NYMPHE"

Disponibilité Prix Genre Pièces Surface Étage
Voir
Disponible
205 000€ Appt. T2 44.72m2 0-RDC
Voir
Disponible
203 000€ Appt. T2 39.17m2 0-RDC
Voir
Disponible
224 500€ Appt. T2 42.96m2 2ème
Voir
Optionné
204 000€ Appt. T2 45.26m2 0-RDC
DO NOT CLICK