199 000€
Appt. au 2ème
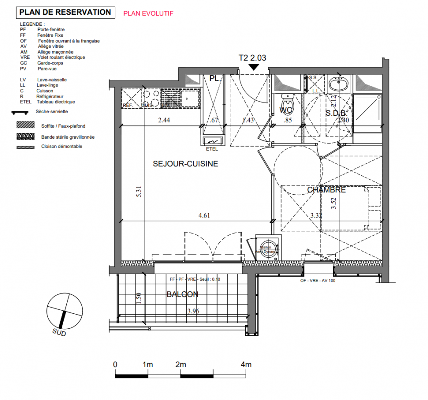
T2
42.51 m²
-
Pleurtuit (35730)
1er trimestre 2028
01 81 80 39 10
Présentation du programme "JADE"
[ NOUVEAU A PLEURTUIT ] Entre Dinard et Saint-Malo, au cœur de la Côte d’Émeraude, la nouvelle résidence JADE dévoile une architecture élégante et contemporaine, parfaitement intégrée dans un environnement verdoyant. Située rue Henri Guillaumet, à proximité immédiate du centre-bourg de Pleurtuit, cette adresse conjugue calme résidentiel et proximité des commodités : commerces, écoles, équipements culturels et sportifs sont accessibles en quelques minutes à pied ou à vélo.
Pensée pour offrir un quotidien simple et serein, JADE bénéficie d’une excellente accessibilité grâce au réseau BreizhGo et à la liaison rapide vers Saint-Malo ou Rennes.
Le programme se compose d’un bâtiment à taille humaine en R+2 proposant des appartements du 2 au 4 pièces, spacieux et lumineux, prolongés d’un jardin, balcon ou terrasse. L’architecture associe enduits clairs, touches boisées et garde-corps vitrés, pour une ambiance chaleureuse et moderne.
Chaque logement a été conçu pour allier confort, bien-être et performance énergétique, garantissant une isolation renforcée et des économies d’énergie durables.
SPÉCIAL INVESTISSEURS – Profitez du nouveau Dispositif JEANBRUN : optimisez votre fiscalité et accélérez votre patrimoine.
Idéal pour habiter ou investir, JADE à Pleurtuit offre un cadre de vie paisible entre nature et littoral, à seulement 11 minutes de Dinard et 20 minutes de Saint-Malo.
Contactez nos conseillers ou rendez-vous sur notre site Vianova.fr pour en savoir plus sur ces opportunités.
Autres logements T2 du programme "JADE"
| Disponibilité | Prix | No | Genre | Pièces | Surface | Étage | Disponibilité | Prix | ||
|---|---|---|---|---|---|---|---|---|---|---|
| Voir | Disponible | 199 000€ | 003 | Appt. | T2 | 42.5m2 | 0-RDC | Disponible | 199 000€ | Voir |
| Voir | Disponible | 192 000€ | 005 | Appt. | T2 | 42.07m2 | 0-RDC | Disponible | 192 000€ | Voir |
| Voir | Disponible | 189 000€ | 103 | Appt. | T2 | 42.51m2 | 1er | Disponible | 189 000€ | Voir |
| Voir | Optionné | 177 000€ | 106 | Appt. | T2 | 42.07m2 | 1er | Optionné Mais pas encore vendu 😉 | 177 000€ | Voir |
| Voir | Disponible | 174 000€ | 201 | Appt. | T2 | 42.07m2 | 2ème | Disponible | 174 000€ | Voir |
| Voir | Disponible | 199 000€ | 204 | Appt. | T2 | 42.5m2 | 2ème | Disponible | 199 000€ | Voir |
| Voir | Disponible | 165 000€ | 207 | Appt. | T2 | 39.27m2 | 2ème | Disponible | 165 000€ | Voir |