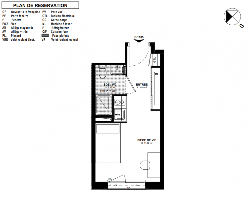
157 000€
Appt. au 11ème
Studio
17.65 m²
-
Rennes (35000)
1er trimestre 2028
01 81 80 39 10
Présentation du programme "KLEEZI | LOUIS GUILLOUX"
[ SUCCES COMMERCIAL– INVESTISSEMENT LOCATIF ] PACK MEUBLES OFFERT – Profitez-en dès maintenant !*
RENNES – Résidence KLEEZI | LOUIS GUILLOUX
Un emplacement stratégique au cœur d’une métropole étudiante en plein essor.
La résidence KLEEZI bénéficie d’une situation idéale, à proximité immédiate de deux grands bassins de vie universitaire :
Agrocampus Ouest Rennes, reconnu pour ses formations d’excellence en agronomie et en sciences du vivant, accueille près de 2 000 étudiants français et internationaux.
Le campus de Villejean – Université Rennes 2, plus grand site universitaire de Bretagne, regroupe environ 23 000 étudiants spécialisés dans les lettres, les langues, les sciences humaines et sociales.
Investissez dans un logement conçu pour les étudiants et jeunes actifs, et profitez de la solution clé en main Lamotte :
- Mobilier entièrement fourni, avec le PACK MEUBLES OFFERT
- Gestion locative et comptable sur mesure(2)
- Accompagnement bancaire personnalisé pour vos financements
- Des studios fonctionnels et innovants
Pensés pour le confort, la qualité et la performance énergétique, les appartements de la résidence KLEEZI allient design, praticité et rentabilité.
Un investissement sûr et optimisé
Grâce à la fiscalité avantageuse du dispositif LMNP(1), percevez des revenus complémentaires peu ou non fiscalisés tout en diversifiant votre patrimoine immobilier.
À proximité immédiate :
Universités et grandes écoles (Agrocampus, Rennes 1, Rennes 2, INSA, ENS, etc.)
Transports en commun (bus, métro)
Centre-ville, commerces, et pôles culturels rennais.
Pour en savoir plus, contactez nos conseillers Lamotte à Rennes ou rendez-vous sur LAMOTTE.FR pour profiter de cette opportunité unique d’investissement étudiant et jeunes actifs!
*(1) Sous réserve des conditions légales d’éligibilité au dispositif LMNP suivant loi de finances en vigueur.
(2) Gestion comptable par un cabinet offerte la première année.
Conditions de l’offre sur le site Lamotte.fr
Autres logements Studio du programme "KLEEZI | LOUIS GUILLOUX"
| Disponibilité | Prix | No | Genre | Pièces | Surface | Étage | Disponibilité | Prix | ||
|---|---|---|---|---|---|---|---|---|---|---|
| Voir | Disponible | 156 000€ | C1003 | Appt. | Studio | 17.94m2 | 10ème | Disponible | 156 000€ | Voir |
| Voir | Disponible | 157 000€ | C1101 | Appt. | Studio | 18m2 | 11ème | Disponible | 157 000€ | Voir |
| Voir | Disponible | 170 000€ | C1102 | Appt. | Studio | 18.25m2 | 11ème | Disponible | 170 000€ | Voir |
| Voir | Disponible | 158 000€ | C1103 | Appt. | Studio | 17.94m2 | 11ème | Disponible | 158 000€ | Voir |
| Voir | Disponible | 158 000€ | C1104 | Appt. | Studio | 18.25m2 | 11ème | Disponible | 158 000€ | Voir |
| Voir | Disponible | 183 000€ | C1106 | Appt. | Studio | 20.48m2 | 0-RDC | Disponible | 183 000€ | Voir |
| Voir | Disponible | 160 000€ | C1201 | Appt. | Studio | 18m2 | 12ème | Disponible | 160 000€ | Voir |
| Voir | Disponible | 160 000€ | C1202 | Appt. | Studio | 18.25m2 | 12ème | Disponible | 160 000€ | Voir |
| Voir | Disponible | 160 000€ | C1203 | Appt. | Studio | 17.94m2 | 12ème | Disponible | 160 000€ | Voir |
| Voir | Disponible | 186 000€ | C1206 | Appt. | Studio | 20.48m2 | 0-RDC | Disponible | 186 000€ | Voir |
| Voir | Disponible | 220 000€ | C0001 | Appt. | Studio | 33.99m2 | 0-RDC | Disponible | 220 000€ | Voir |
| Voir | Disponible | 171 000€ | C0002 | Appt. | Studio | 25.83m2 | 0-RDC | Disponible | 171 000€ | Voir |
| Voir | Disponible | 234 000€ | C0101 | Appt. | Studio | 34.76m2 | 1er | Disponible | 234 000€ | Voir |
| Voir | Disponible | 160 000€ | C0108 | Appt. | Studio | 22.78m2 | 1er | Disponible | 160 000€ | Voir |
| Voir | Disponible | 160 000€ | C0109 | Appt. | Studio | 22.61m2 | 1er | Disponible | 160 000€ | Voir |
| Voir | Disponible | 160 000€ | C0110 | Appt. | Studio | 22.69m2 | 1er | Disponible | 160 000€ | Voir |
| Voir | Disponible | 236 000€ | C0201 | Appt. | Studio | 34.76m2 | 2ème | Disponible | 236 000€ | Voir |
| Voir | Disponible | 169 000€ | C0208 | Appt. | Studio | 22.78m2 | 2ème | Disponible | 169 000€ | Voir |
| Voir | Disponible | 161 000€ | C0209 | Appt. | Studio | 22.61m2 | 2ème | Disponible | 161 000€ | Voir |
| Voir | Disponible | 161 000€ | C0210 | Appt. | Studio | 22.69m2 | 2ème | Disponible | 161 000€ | Voir |
| Voir | Disponible | 155 000€ | C0214 | Appt. | Studio | 20.48m2 | 2ème | Disponible | 155 000€ | Voir |
| Voir | Disponible | 225 000€ | C0301 | Appt. | Studio | 34.76m2 | 3ème | Disponible | 225 000€ | Voir |
| Voir | Disponible | 162 000€ | C0308 | Appt. | Studio | 22.78m2 | 3ème | Disponible | 162 000€ | Voir |
| Voir | Disponible | 164 000€ | C0314 | Appt. | Studio | 20.48m2 | 3ème | Disponible | 164 000€ | Voir |
| Voir | Disponible | 164 000€ | C0407 | Appt. | Studio | 22.78m2 | 4ème | Disponible | 164 000€ | Voir |
| Voir | Disponible | 164 000€ | C0408 | Appt. | Studio | 22.11m2 | 4ème | Disponible | 164 000€ | Voir |
| Voir | Disponible | 177 000€ | C0501 | Appt. | Studio | 21.04m2 | 5ème | Disponible | 177 000€ | Voir |
| Voir | Disponible | 177 000€ | C0507 | Appt. | Studio | 22.78m2 | 5ème | Disponible | 177 000€ | Voir |
| Voir | Disponible | 166 000€ | C0508 | Appt. | Studio | 22.11m2 | 5ème | Disponible | 166 000€ | Voir |
| Voir | Disponible | 179 000€ | C0601 | Appt. | Studio | 21.04m2 | 6ème | Disponible | 179 000€ | Voir |
| Voir | Disponible | 169 000€ | C0607 | Appt. | Studio | 22.78m2 | 6ème | Disponible | 169 000€ | Voir |
| Voir | Disponible | 179 000€ | C0608 | Appt. | Studio | 22.11m2 | 6ème | Disponible | 179 000€ | Voir |
| Voir | Disponible | 152 000€ | C0611 | Appt. | Studio | 17.65m2 | 6ème | Disponible | 152 000€ | Voir |
| Voir | Disponible | 158 000€ | C0612 | Appt. | Studio | 20.48m2 | 6ème | Disponible | 158 000€ | Voir |
| Voir | Disponible | 163 000€ | C0808 | Appt. | Studio | 20.48m2 | 8ème | Disponible | 163 000€ | Voir |
| Voir | Disponible | 155 000€ | C0901 | Appt. | Studio | 18.11m2 | 9ème | Disponible | 155 000€ | Voir |
| Voir | Disponible | 155 000€ | C0903 | Appt. | Studio | 18.25m2 | 9ème | Disponible | 155 000€ | Voir |
| Voir | Disponible | 155 000€ | C0904 | Appt. | Studio | 17.94m2 | 9ème | Disponible | 155 000€ | Voir |
| Voir | Optionné | 155 000€ | C0905 | Appt. | Studio | 18.1m2 | 9ème | Optionné Mais pas encore vendu 😉 | 155 000€ | Voir |
| Voir | Disponible | 166 000€ | C0908 | Appt. | Studio | 20.48m2 | 9ème | Disponible | 166 000€ | Voir |
| Voir | Disponible | 166 000€ | C1004 | Appt. | Studio | 18.25m2 | 10ème | Disponible | 166 000€ | Voir |
| Voir | Disponible | 170 000€ | C1006 | Appt. | Studio | 20.48m2 | 10ème | Disponible | 170 000€ | Voir |