325 000€
Appt. au 1er
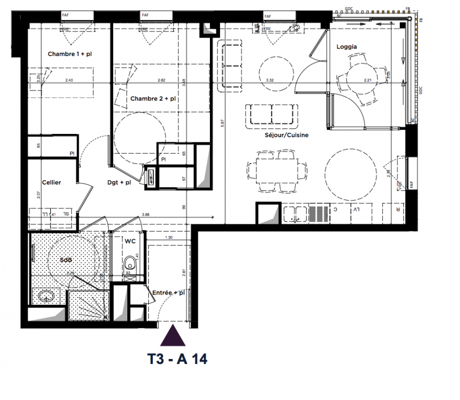
T3
72.2 m²
Est
Saint-Malo (35400)
1er trimestre 2025
01 81 80 39 10
Présentation du programme "CARROUSEL"
DERNIÈRES OPPORTUNITÉS - LIVRAISON 2026. Bienvenue à CARROUSEL, un programme immobilier neuf situé sur le site de la caserne de Lorette, un nouvel écoquartier à Saint Malo. A quelques minutes des écoles, des commerces, du centre-ville et des plages malouines, profitez d’une belle qualité de vie de village dans ce nouveau quartier. Un nouveau lieu de vie qui préserve le patrimoine identitaire du site tout en développant les espaces verts partagés dans une démarche de faible empreinte écologique. CARROUSEL propose des appartements du 2 au 5 pièces mais aussi des maisons de 4 et 5 pièces. Pour profiter pleinement de la nature environnante et de l’air malouin, chaque logement bénéficie d’un espace extérieur : loggia, terrasse ou jardin. Éligible au nouveau dispositif Jeanbrun (statut du bailleur privé) + au dispositif LLI.