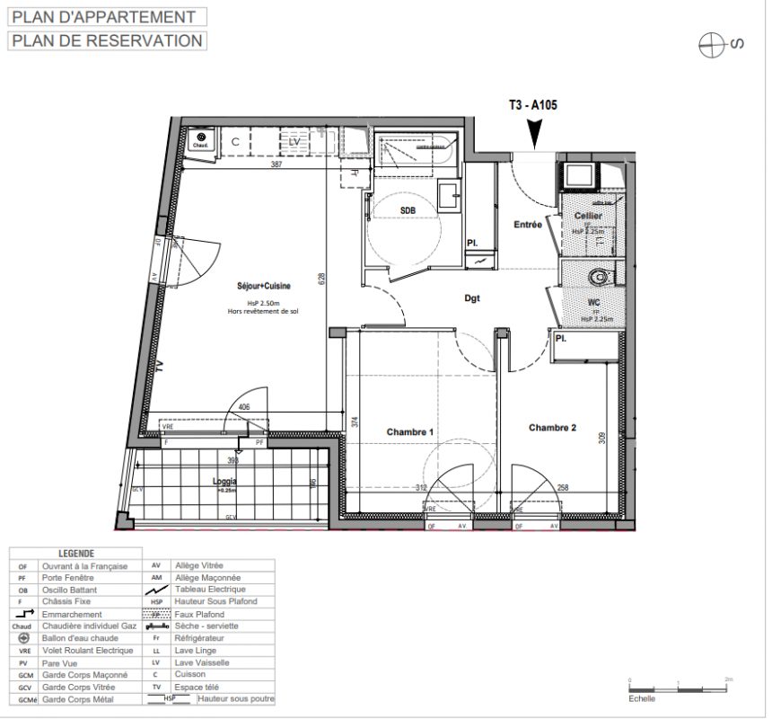
265 000€
Appt. au 1er
T3
61.92 m²
-
Thorigné-Fouillard (35235)
1er trimestre 2027
01 81 80 39 10
Présentation du programme "CEPIA"
[ - TRAVAUX EN COURS - ] DEVENEZ PROPRIÉTAIRE GRÂCE À IMMOSTART* et au PTZ 2025** !
Située à Thorigné-Fouillard, commune dynamique et recherchée de la première couronne rennaise, la résidence CEPIA vous offre un cadre de vie rare : environnement verdoyant, quartier résidentiel calme, à proximité immédiate du centre-bourg et de toutes les commodités du quotidien (commerces, écoles, équipements publics…).
Parfaitement connectée à Rennes et sa métropole, grâce à des accès rapides à la rocade, la ligne B du métro et des transports en commun fluides, CEPIA allie qualité de vie au vert et mobilité facilitée.
Découvrez nos appartements neufs du 2 au 4 pièces, baignés de lumière grâce à de belles expositions, tous prolongés d’un espace extérieur (balcon, terrasse ou jardin privatif) et ouverts sur un cœur d’îlot végétalisé. Confort, sécurité et prestations soignées font de chaque logement un lieu de vie agréable et durable.
Idéal pour une première acquisition ou un projet de vie entre nature et ville, CEPIA vous permet de bénéficier du nouveau Prêt à Taux Zéro 2025, dans une commune à taille humaine tournée vers l’avenir.
*voir les conditions sur la page mentions légales de notre site Vianova.fr
** Valable pour les offres de Prêt à Taux Zéro (PTZ) émises entre 1er avril 2025 et le 31 décembre 2027, pour l’acquisition d'une résidence principale neuve en tant que primo-accédant. Le PTZ est accessible dans toutes les communes du territoire français, quelle que soit leur zone A, B ou C, pour les logements collectifs et individuels neufs, dans les conditions d’application prévues par la loi de finances pour 2025 et selon les modalités définies par le décret n°2025-299 du 29/03/2025. Sous réserve d’acceptation du dossier par l’établissement bancaire.
Autres logements T3 du programme "CEPIA"
| Disponibilité | Prix | No | Genre | Pièces | Surface | Étage | Disponibilité | Prix | ||
|---|---|---|---|---|---|---|---|---|---|---|
| Voir | Disponible | 283 000€ | A102 | Appt. | T3 | 64.81m2 | 1er | Disponible | 283 000€ | Voir |
| Voir | Disponible | 257 000€ | A103 | Appt. | T3 | 59.88m2 | 1er | Disponible | 257 000€ | Voir |
| Voir | Disponible | 288 000€ | A202 | Appt. | T3 | 64.81m2 | 2ème | Disponible | 288 000€ | Voir |
| Voir | Disponible | 264 000€ | A203 | Appt. | T3 | 59.88m2 | 2ème | Disponible | 264 000€ | Voir |
| Voir | Disponible | 270 500€ | A205 | Appt. | T3 | 61.92m2 | 2ème | Disponible | 270 500€ | Voir |
| Voir | Disponible | 294 000€ | A302 | Appt. | T3 | 64.81m2 | 3ème | Disponible | 294 000€ | Voir |
| Voir | Disponible | 269 500€ | A303 | Appt. | T3 | 59.88m2 | 3ème | Disponible | 269 500€ | Voir |
| Voir | Disponible | 371 000€ | A401 | Appt. | T3 | 71.92m2 | 4ème | Disponible | 371 000€ | Voir |
| Voir | Disponible | 283 000€ | B004 | Appt. | T3 | 69m2 | 0-RDC | Disponible | 283 000€ | Voir |
| Voir | Disponible | 330 000€ | B101 | Appt. | T3 | 74.78m2 | 1er | Disponible | 330 000€ | Voir |
| Voir | Disponible | 285 000€ | B102 | Appt. | T3 | 66.41m2 | 1er | Disponible | 285 000€ | Voir |
| Voir | Disponible | 265 000€ | B106 | Appt. | T3 | 61.75m2 | 1er | Disponible | 265 000€ | Voir |
| Voir | Disponible | 336 500€ | B201 | Appt. | T3 | 74.78m2 | 2ème | Disponible | 336 500€ | Voir |
| Voir | Disponible | 290 500€ | B202 | Appt. | T3 | 66.41m2 | 2ème | Disponible | 290 500€ | Voir |
| Voir | Disponible | 270 500€ | B206 | Appt. | T3 | 61.75m2 | 2ème | Disponible | 270 500€ | Voir |
| Voir | Disponible | 340 500€ | B301 | Appt. | T3 | 74.78m2 | 3ème | Disponible | 340 500€ | Voir |
| Voir | Disponible | 302 000€ | B302 | Appt. | T3 | 66.3m2 | 3ème | Disponible | 302 000€ | Voir |
| Voir | Disponible | 282 000€ | B306 | Appt. | T3 | 61.75m2 | 3ème | Disponible | 282 000€ | Voir |
| Voir | Optionné | 374 500€ | B402 | Appt. | T3 | 71.92m2 | 4ème | Optionné Mais pas encore vendu 😉 | 374 500€ | Voir |