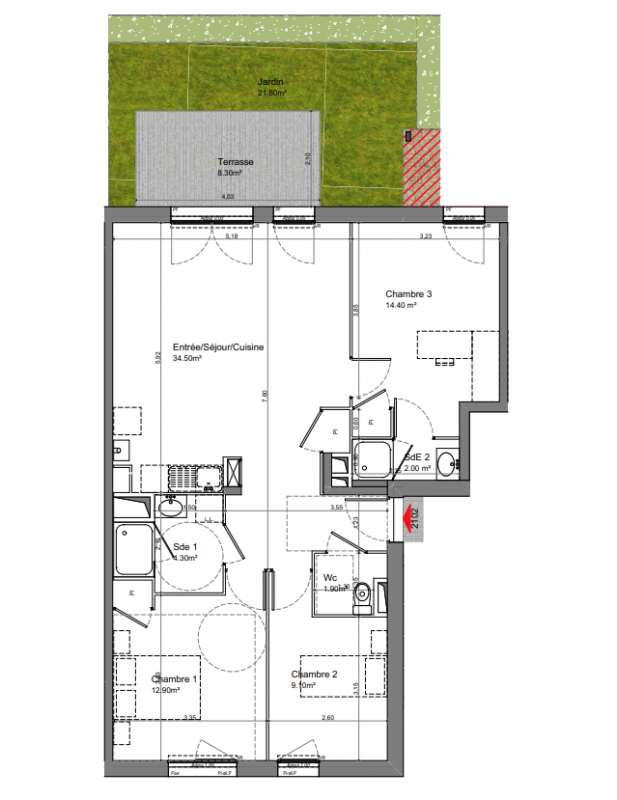
Prix
252 083€
252 083€
Type
Appt. au 0-RDC
Appt. au 0-RDC
Pièces
T4
T4
Surface
79 m²
79 m²
Exposition
Nord
Nord
Ville
Tours (37000)
Tours (37000)
Livraison
1er trimestre 2026
1er trimestre 2026
Informations
01 81 80 39 10
01 81 80 39 10
Présentation du programme "DOMAINE DE SUEDE"
Autres logements T4 du programme "DOMAINE DE SUEDE"
| Disponibilité | Prix | No | Genre | Pièces | Surface | Étage | Disponibilité | Prix | ||
|---|---|---|---|---|---|---|---|---|---|---|
| Voir | Disponible | 303 000€ | 3151 | Appt. | T4 | 77m2 | 5ème | Disponible | 303 000€ | Voir |
| Voir | Optionné | 254 833€ | 2104 | Appt. | T4 | 78m2 Le bon plan | 0-RDC | Optionné Mais pas encore vendu 😉 | 254 833€ | Voir |
| Voir | Disponible | 279 583€ | 3251 | Appt. | T4 | 77m2 | 5ème | Disponible | 279 583€ | Voir |