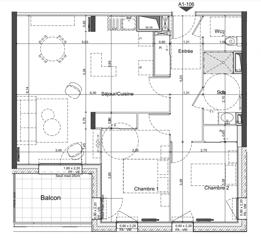
279 000€
Appt. au 1er
T3
67.1 m²
-
Tours (37000)
4ème trimestre 2026
01 81 80 39 10
Présentation du programme "Targa"
ACHETEZ VOTRE APPARTEMENT NEUF À TOURS
Targa, votre nouveau projet immobilier Avenue Maginot à Tours
La résidence Targa se situe dans un quartier dynamique, aux portes d’une zone d’activité tertiaire d’importance : l’Aéronef, véritable bassin d’emplois qui abrite de nombreuses entreprises.
Proche du pôle commercial de La Petite Arche et à quelques minutes à pieds du tramway, vous disposez d’un accès facile et rapide au centre-ville de Tours et aux diverses écoles, collèges et lycées. Vous profiterez également du Jardin de la Grenouillère et de plusieurs complexes sportifs.
Targa, une résidence vertueuse à Tours
Vers un avenir plus vert et plus sobre
La volonté des concepteurs de Targa s’inscrit dans une démarche continue en faveur de bâtiments moins énergivores. La résidence sera donc conçue en appliquant la nouvelle réglementation environnementale RE2020, plus ambitieuse et exigeante. En plus de la performance énergétique, cette nouvelle norme prend en compte l’empreinte environnementale du bâtiment, sa capacité à générer de l’énergie et ouvre la voie aux constructions vertueuses.
Un projet architectural innovant
Un bâtiment conçu pour optimiser la fraîcheur en été, maîtriser les dépenses énergétiques en hiver
Des panneaux photovoltaïques installés sur le toit de la résidence assurent une partie de l’autonomie énergétique des parties communes. Cet investissement d’avenir est une réponse efficace aux enjeux environnementaux.
La résidence Targa dispose de volets roulants à projection à la niçoise sur la façade sud qui permettent de limiter l’exposition au soleil et de diminuer la température au sein des logements tout en laissant circuler l’air. Couramment utilisés dans les régions ensoleillées, ces équipements offrent un ombrage intime et chaleureux. Protections efficaces contre le soleil, ces volets s’adaptent élégamment à la façade du bâtiment.
Des appartements neufs du 2 au 4 pièces
Des logements spacieux et confortables
Chaque appartement a été pensé pour votre bien-être. Une attention particulière a été portée à votre confort, à la qualité des prestations et au choix de matériaux sains qui assurent un cadre de vie durable.
Chaque logement dispose d’une terrasse, d’un balcon ou d’une loggia ainsi que d’un parking en sous-sol et les résidents peuvent stationner leurs deux-roues dans les locaux prévus à cet effet.
VOTRE PROJET MÉRITE UNE DOUBLE ATTENTION !
Quatro Promotion et Vianova vous accompagnent dans la réussite de votre projet.
Quatro P
Autres logements T3 du programme "Targa"
| Disponibilité | Prix | No | Genre | Pièces | Surface | Étage | Disponibilité | Prix | ||
|---|---|---|---|---|---|---|---|---|---|---|
| Voir | Disponible | 281 000€ | A1303 | Appt. | T3 | 63.3m2 | 3ème | Disponible | 281 000€ | Voir |
| Voir | Disponible | 268 000€ | B003 | Appt. | T3 | 62.2m2 | 0-RDC | Disponible | 268 000€ | Voir |
| Voir | Disponible | 267 000€ | A1402 | Appt. | T3 | 65.4m2 | 4ème | Disponible | 267 000€ | Voir |
| Voir | Disponible | 278 000€ | A1203 | Appt. | T3 | 63.3m2 | 2ème | Disponible | 278 000€ | Voir |
| Voir | Disponible | 276 000€ | A1003 | Appt. | T3 | 66.9m2 | 0-RDC | Disponible | 276 000€ | Voir |
| Voir | Disponible | 286 000€ | A2304 | Appt. | T3 | 66.3m2 | 3ème | Disponible | 286 000€ | Voir |
| Voir | Disponible | 285 000€ | A1306 | Appt. | T3 | 67.1m2 | 3ème | Disponible | 285 000€ | Voir |
| Voir | Disponible | 283 000€ | A2204 | Appt. | T3 | 66.3m2 | 2ème | Disponible | 283 000€ | Voir |
| Voir | Disponible | 278 000€ | A2305 | Appt. | T3 | 62.2m2 | 3ème | Disponible | 278 000€ | Voir |
| Voir | Disponible | 270 000€ | A1502 | Appt. | T3 | 65.4m2 | 5ème | Disponible | 270 000€ | Voir |
| Voir | Disponible | 280 000€ | A2203 | Appt. | T3 | 63m2 | 2ème | Disponible | 280 000€ | Voir |
| Voir | Disponible | 264 000€ | A1302 | Appt. | T3 | 65.4m2 | 3ème | Disponible | 264 000€ | Voir |
| Voir | Disponible | 274 000€ | B201 | Appt. | T3 | 62m2 | 2ème | Disponible | 274 000€ | Voir |
| Voir | Disponible | 268 000€ | B002 | Appt. | T3 | 62.2m2 | 0-RDC | Disponible | 268 000€ | Voir |
| Voir | Disponible | 260 000€ | B004 | Appt. | T3 | 62m2 Le bon plan | 0-RDC | Disponible | 260 000€ | Voir |
| Voir | Disponible | 271 000€ | B102 | Appt. | T3 | 62.2m2 | 1er | Disponible | 271 000€ | Voir |
| Voir | Disponible | 258 000€ | A1102 | Appt. | T3 | 66.2m2 | 1er | Disponible | 258 000€ | Voir |
| Voir | Disponible | 272 000€ | A2301 | Appt. | T3 | 64.9m2 | 3ème | Disponible | 272 000€ | Voir |
| Voir | Disponible | 276 000€ | A1305 | Appt. | T3 | 62.2m2 | 3ème | Disponible | 276 000€ | Voir |