Ce lot n’est plus disponible chez VIANOVA ou est vendu.

Vous pouvez revenir dans 24h pour vérifier le stock à jour ou contacter un conseiller Vianova pour vérifier le stock en direct.
Vous pouvez également continuer votre recherche sur notre site « ici ».

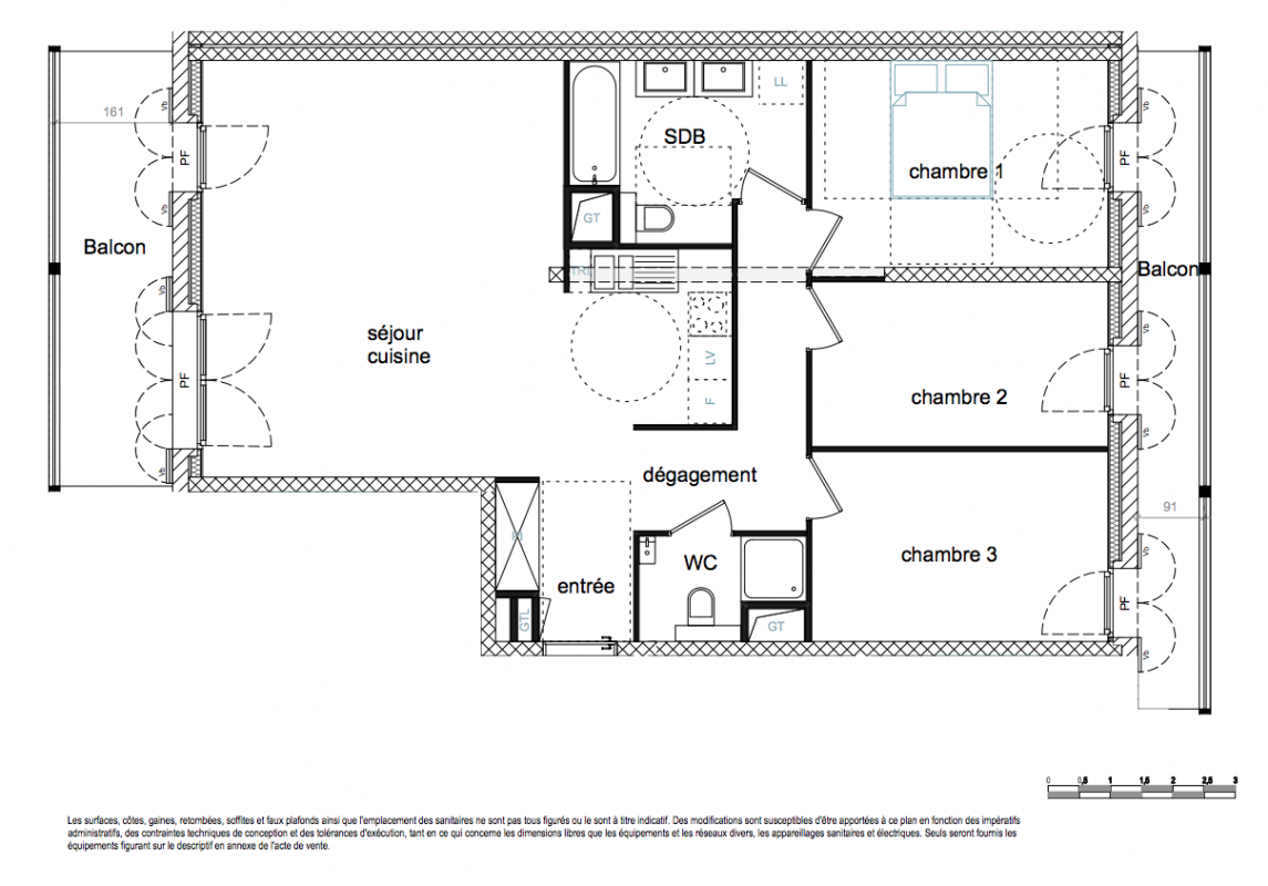
Prix
421 177€
Type
Appt. au 0-RDC
Pièces
T4
Surface
87.38 m²
Exposition
-
Ville
Strasbourg (67000)
Livraison
3ème trimestre 2028
Informations
01 81 80 39 10

Présentation du programme "Le Cœur Du Rhin - Phase 2"

Autres logements T4 du programme "Le Cœur Du Rhin - Phase 2"

Disponibilité Prix Genre Pièces Surface Étage
Voir
Disponible
388 500€ Appt. T4 87.22m2 0-RDC
Voir
Disponible
391 500€ Appt. T4 87.38m2 0-RDC
Voir
Disponible
403 000€ Appt. T4 87.38m2 0-RDC
DO NOT CLICK