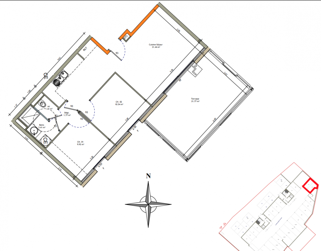
Prix
243 330€
Type
Appt. au 2ème
Pièces
T3
Surface
58.3 m²
Exposition
Sud
Ville
Villerupt (54190)
Livraison
2ème trimestre 2026
Informations
01 81 80 39 10

Présentation du programme "VILLA LUXEMBOURG"

Le confort et la qualité ont été les maitres mots dans la conception de cette résidence qui
possède des finitions de très bon standing et des matériaux de qualité.
La VILLA LUXEMBOURG sera équipée d’un portail d’accès électrique, de 2 ascenseurs et accès
PMR et d’un système sécurisé avec vidéophonie.

Autres logements T3 du programme "VILLA LUXEMBOURG"

Disponibilité Prix Genre Pièces Surface Étage
Voir
Disponible
255 155€ Appt. T3 62.18m2 1er
Voir
Disponible
242 232€ Appt. T3 58.3m2 1er
DO NOT CLICK