Prix
346 000€
346 000€
Type
Appt. au 3ème
Appt. au 3ème
Pièces
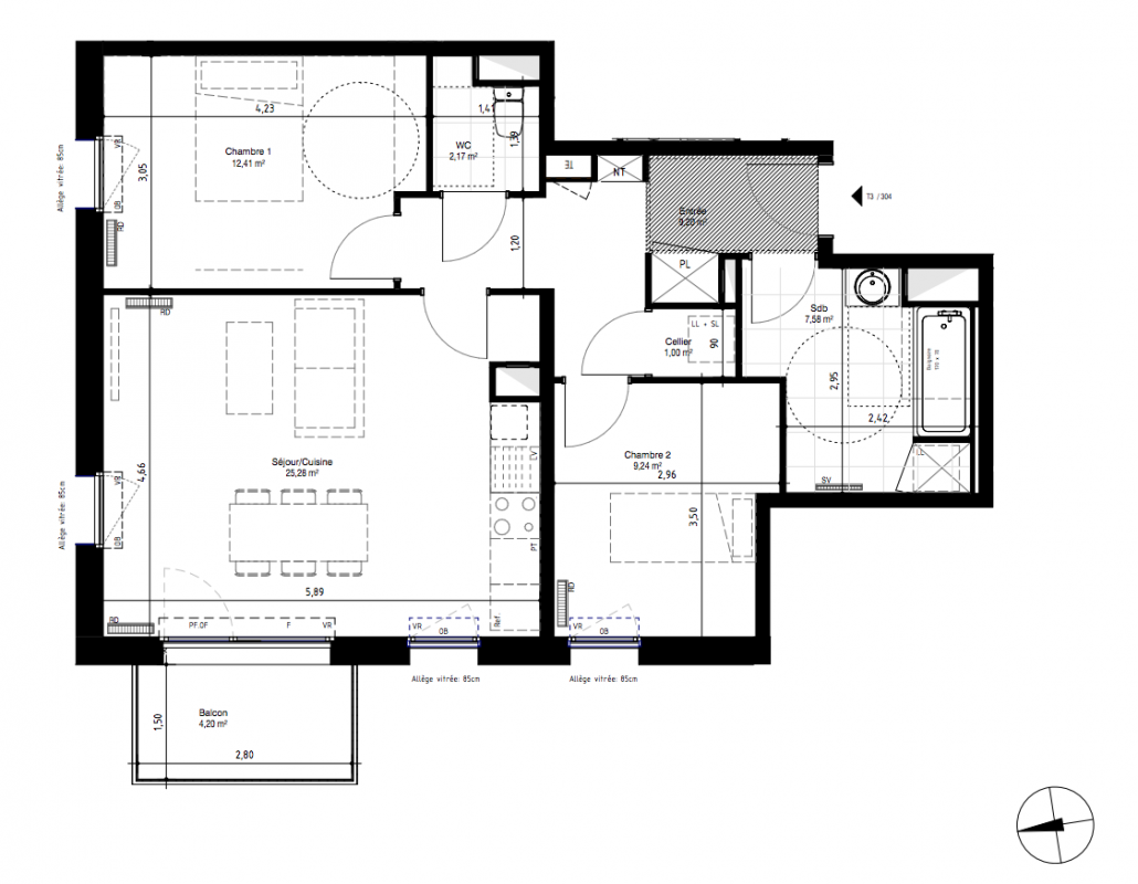
T3
T3
Surface
66.89 m²
66.89 m²
Exposition
-
-
Ville
Lambersart (59130)
Lambersart (59130)
Livraison
1er trimestre 2027
1er trimestre 2027
Informations
01 81 80 39 10
01 81 80 39 10
Présentation du programme "IVOIRE - LAMBERSART"
Nacarat et Loger Habitat vous proposent une nouvelle adresse idéalement située à Lambersart.
Devenez propriétaire de votre appartement neuf, à mi-chemin entre le Canon d'Or et la Citadelle. Cette élégante résidence à taille humaine, propose des logements du studio au 4 pièces, avec espace extérieur et stationnement privatif.

