165 000€
Appt. au 2ème
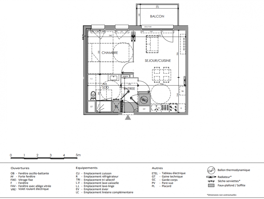
T2
43.6 m²
Nord
Saint-Amand-les-Eaux (59230)
3ème trimestre 2028
01 81 80 39 10
Présentation du programme "REFLETS D'Ô"
Reflets d’Ô bénéficie d’un emplacement privilégié en bord de Scarpe, offrant un cadre naturel remarquable et un accès immédiat au chemin de halage. Entre proximité des commerces, douceur de vie et déplacements facilités, la résidence propose un quotidien apaisé et harmonieux.
L’architecture mêle matériaux nobles et lignes contemporaines : attiques en bois, garde corps épurés et toitures végétalisées composent une esthétique élégante et chaleureuse. Les appartements, déclinés du 2 au 4 pièces, offrent lumière, confort et fonctionnalité grâce à des plans optimisés et de grandes ouvertures sur la nature.
Un cœur d’îlot paysager généreux invite à se reconnecter à la nature. Les cheminements doux et les zones d’agrément créent une atmosphère paisible et conviviale.
Reflets d’Ô constitue un investissement attractif, porté par la proximité des Thermes, du centre ville, du pôle hospitalier et du Pasino. La TVA réduite à 5,5 % (sous conditions d’éligibilité) renforce l’accessibilité du projet, pour habiter ou investir en toute sérénité.
Une alliance subtile d’élégance, de nature et de modernité, pour un véritable art de vivre. Ne manquez pas l’occasion d’être parmi les premiers à choisir la douceur de Saint-Amand-les-Eaux en nous contactant au 01 81 80 39 10.
Autres logements T2 du programme "REFLETS D'Ô"
| Disponibilité | Prix | No | Genre | Pièces | Surface | Étage | Disponibilité | Prix | ||
|---|---|---|---|---|---|---|---|---|---|---|
| Voir | Optionné | 158 000€ | LB013 | Appt. | T2 | 43.8m2 | 1er | Optionné Mais pas encore vendu 😉 | 158 000€ | Voir |
| Voir | Disponible | 155 000€ | LB018 | Appt. | T2 | 42.15m2 | 1er | Disponible | 155 000€ | Voir |
| Voir | Disponible | 165 000€ | LB022 | Appt. | T2 | 43.6m2 | 2ème | Disponible | 165 000€ | Voir |
| Voir | Disponible | 163 000€ | LB023 | Appt. | T2 | 43.8m2 | 2ème | Disponible | 163 000€ | Voir |
| Voir | Disponible | 159 000€ | LB028 | Appt. | T2 | 42.15m2 | 2ème | Disponible | 159 000€ | Voir |
| Voir | Disponible | 160 000€ | LB012 | Appt. | T2 | 43.6m2 | 1er | Disponible | 160 000€ | Voir |