Prix
195 000€ (TVA 20%)
178 750€ (TVA 10%)
195 000€ (TVA 20%)
178 750€ (TVA 10%)
Type
Appt. au 0-RDC
Appt. au 0-RDC
Pièces
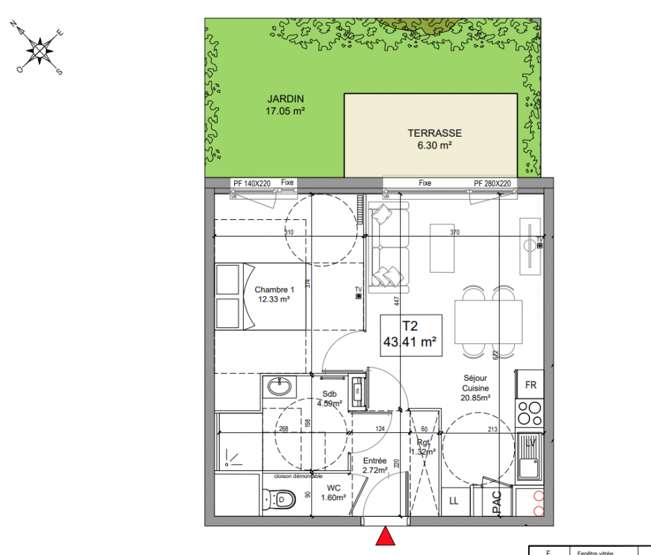
T2
T2
Surface
43.18 m²
43.18 m²
Exposition
-
-
Ville
Seclin (59113)
Seclin (59113)
Livraison
2ème trimestre 2026
2ème trimestre 2026
Informations
01 81 80 39 10
01 81 80 39 10
Présentation du programme "Jardin des Samares"