Prix
238 000€
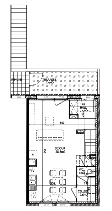
Type
Appt. au 1er
Pièces
T3
Surface
68.8 m²
Exposition
-
Ville
Tourcoing (59200)
Livraison
4ème trimestre 2024
Informations
01 81 80 39 10

Présentation du programme "OASIS"

Programme neuf OASIS à Tourcoing - 59200. Renseignez-vous dès maintenant ! Pour toutes informations complémentaires, prenez contact avec nous !

Autres logements T3 du programme "OASIS"

Disponibilité Prix Genre Pièces Surface Étage
Voir
Disponible
239 000€ Appt. T3 70.8m2 1er
DO NOT CLICK