Prix
318 000€
Type
Appt. au 2ème
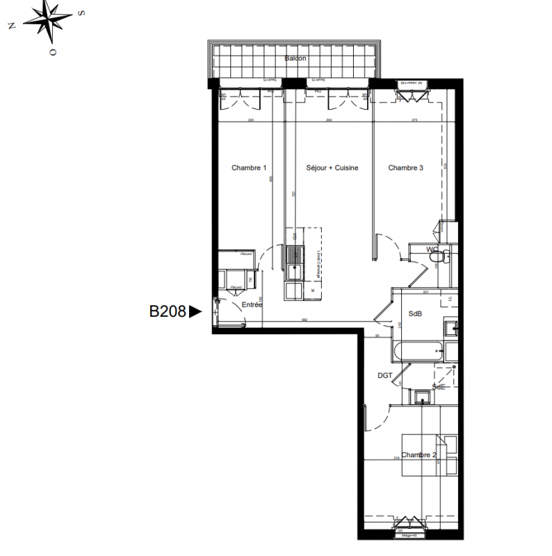
Pièces
T4
Surface
78.87 m²
Exposition
-
Ville
Compiègne (60200)
Livraison
4ème trimestre 2027
Informations
01 81 80 39 10

Présentation du programme "CARRE MANSART "

Située à seulement 1 heure* de Paris en train et à proximité de l'autoroute A1 pour rejoindre Paris, Lille ou Amiens, Compiègne offre un cadre de vie agréable entre nature et dynamisme urbain. Bordée par la forêt domaniale et les rives de l’Oise, la ville est riche de son patrimoine historique, de son offre culturelle et sportive variée ainsi que de ses nombreux commerces. Le tout avec un service de bus gratuit facilitant les déplacements au quotidien.

Cette résidence à l’architecture élégante de style Mansart propose 47 appartements du 2 au 4 pièces, pensés pour le confort des résidents. Tous les appartements bénéficient d’un balcon ou d’une terrasse avec jardin pour profiter des beaux jours. La résidence dispose de deux halls d’entrée, chacun équipé d’un ascenseur, ainsi que d’un parking sécurisé en sous-sol. Un commerce en rez-de-chaussée viendra enrichir l’offre de proximité du quartier. « CARRE MANSART » s'inscrit dans le cadre de la Réglementation Environnementale RE2020, garantissant des normes exigeantes en matière de performance énergétique et de respect de l'environnement, pour offrir à ses habitants un cadre de vie harmonieux et durable. Fort de son savoir-faire de plus de 50 ans en immobilier résidentiel, European Homes réinvente une fois de plus la qualité de vie à Compiègne.

Autres logements T4 du programme "CARRE MANSART "

Disponibilité Prix Genre Pièces Surface Étage
Voir
Disponible
304 000€ Appt. T4 80.71m2 1er
Voir
Disponible
296 000€ Appt. T4 77.47m2 1er
DO NOT CLICK