Ce lot n’est plus disponible chez VIANOVA ou est vendu.

Vous pouvez revenir dans 24h pour vérifier le stock à jour ou contacter un conseiller Vianova pour vérifier le stock en direct.
Vous pouvez également continuer votre recherche sur notre site « ici ».

Prix
319 999€
Type
Appt. au 1er
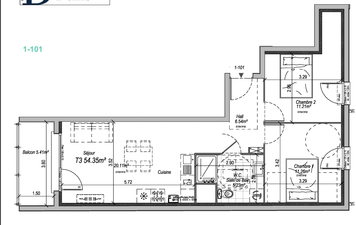
Pièces
T3
Surface
54 m²
Exposition
Ouest
Ville
Cucq (62780)
Livraison
2ème trimestre 2026
Informations
01 81 80 39 10

Présentation du programme "STELLA MARINA"

A seulement 180 mètres de la plage, saisissez le DERNIER 3 PIECES avec BALCON orienté SUD !

Le Touquet-Paris-Plage à 12 minutes seulement ! Stella-Marina est une adresse idéale pour se ressourcer qui profite de tous les services de la station, rapidement accessibles à pied.
Pour garantir aux résidents des espaces conviviaux, une luminosité optimale et une vraie sensation de bien-être chez soi, les appartements de Stella-Marina ont été conçus pour offrir des surfaces bien pensées et des prestations de qualité, parfait pour votre résidence secondaire.

Autres logements T3 du programme "STELLA MARINA"

Pas de logements disponibles
DO NOT CLICK