233 000€
Appt. au 1er
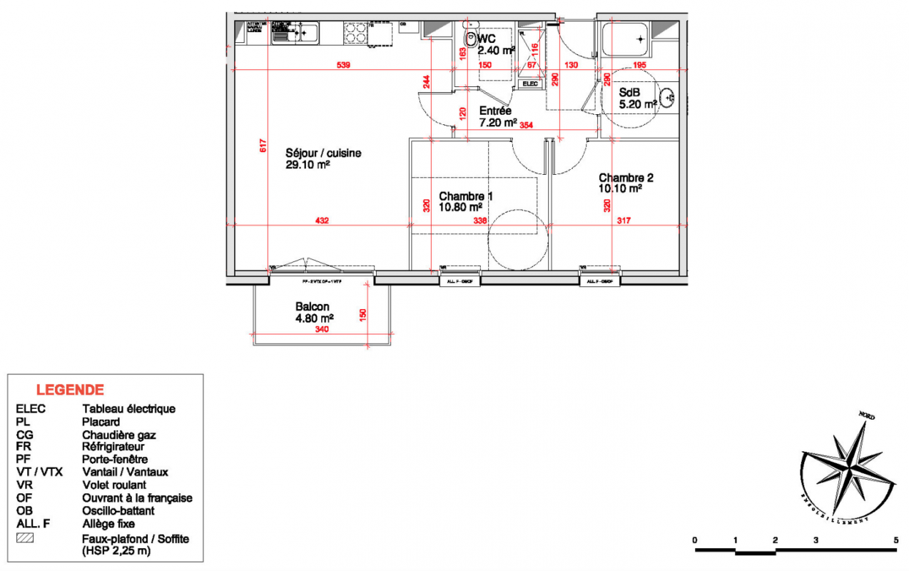
T3
64.8 m²
Sud-Est
Saint-Martin-Boulogne (62280)
1er trimestre 2028
01 81 80 39 10
Présentation du programme "Le Parc Saint-Martin"
Accéder à la maquette 3D du Parc Saint-MartinLe Parc Saint-Martin, un cadre privilégié au cœur d’un espace boiséImplantée à moins de 10 minutes à pied des remparts historiques de Boulogne-sur-Mer, la résidence Le Parc Saint-Martin s’intègre dans un environnement exceptionnel. Nichée au nord d’un parc boisé, elle bénéficie de la réhabilitation du monastère de la Visitation, qui accueillera notamment une résidence senior et un local associatif.Avec seulement 25 appartements, du 2 au 4 pièces, la résidence propose une adresse intimiste et sécurisée, où chaque logement dispose d’un extérieur privatif.Une situation idéaleProximité immédiate avec Boulogne-sur-Mer.Accès rapide à l’autoroute A16, reliant Calais, Dunkerque, Lille et Amiens.Une ville dynamique avec 6 écoles maternelles et primaires, 2 collèges et 3 lycées.Une offre culturelle et sportive riche : centre culturel Georges Brassens, stade municipal, piscine, 50 associations.3Une résidence intimiste, avec seulement 25 logements.Un environnement naturel préservé, au cœur d’un grand parc aménagé et fermé.Un cadre de vie sécurisé, avec résidence fermée et accès contrôlé.Un extérieur privatif pour chaque appartement : terrasse, balcon, loggia ou jardin.Une architecture sobre et élégante, en parfaite harmonie avec son cadre naturel.AppartementsPensés pour le confort et la modernité, les 25 logements sont dotés de prestations de qualité :Espaces de vie lumineux, avec cuisine ouverte et convivialité optimisée.Salles de bains équipées : baignoire ou douche selon typologie, meuble vasque avec miroir et bandeau lumineux, radiateur sèche-serviette.Revêtements de sol élégants : parquet stratifié dans les pièces de vie, carrelage dans les salles de bains.Volets roulants dans toutes les pièces pour un confort thermique et une meilleure gestion de la lumière.Chauffage et eau chaude sanitaire assurés par chaudière individuelle à condensation.Conformité RE2020, garantissant des performances énergétiques optimisées.Espaces extérieurs et équipementsChaque appartement bénéficie d’un extérieur : terrasse, balcon, loggia ou jardin privatif pour les logements en rez-de-chaussée.Stationnement privatif avec places et/ou box pré-équipés pour la recharge des véhicules électriques.Résidence fermée et sécurisée, avec portail motorisé et vidéophone.Local à vélos fermé, facilitant les déplacements doux.À proximité immédiate à piedCentre-ville de Saint-Martin-Boulogne et Boulogne-sur-Mer à quelques minutesCommerces, services et équipem
Autres logements T3 du programme "Le Parc Saint-Martin"
| Disponibilité | Prix | No | Genre | Pièces | Surface | Étage | Disponibilité | Prix | ||
|---|---|---|---|---|---|---|---|---|---|---|
| Voir | Disponible | 241 000€ | B002 | Appt. | T3 | 65.6m2 | 0-RDC | Disponible | 241 000€ | Voir |
| Voir | Disponible | 230 000€ | B004 | Appt. | T3 | 64.8m2 | 0-RDC | Disponible | 230 000€ | Voir |
| Voir | Disponible | 245 000€ | B005 | Appt. | T3 | 65.9m2 | 0-RDC | Disponible | 245 000€ | Voir |
| Voir | Disponible | 249 000€ | B006 | Appt. | T3 | 65.3m2 Le bon plan | 0-RDC | Disponible | 249 000€ | Voir |
| Voir | Disponible | 236 000€ | B007 | Appt. | T3 | 67.5m2 | 0-RDC | Disponible | 236 000€ | Voir |
| Voir | Disponible | 237 000€ | B102 | Appt. | T3 | 68.6m2 | 1er | Disponible | 237 000€ | Voir |
| Voir | Disponible | 241 000€ | B103 | Appt. | T3 | 65.6m2 | 1er | Disponible | 241 000€ | Voir |
| Voir | Disponible | 243 000€ | B107 | Appt. | T3 | 65.3m2 | 1er | Disponible | 243 000€ | Voir |
| Voir | Disponible | 239 000€ | B108 | Appt. | T3 | 67.5m2 | 1er | Disponible | 239 000€ | Voir |
| Voir | Disponible | 237 000€ | B201 | Appt. | T3 | 63.7m2 | 2ème | Disponible | 237 000€ | Voir |
| Voir | Disponible | 248 000€ | B202 | Appt. | T3 | 68.6m2 | 2ème | Disponible | 248 000€ | Voir |