Prix
204 000€
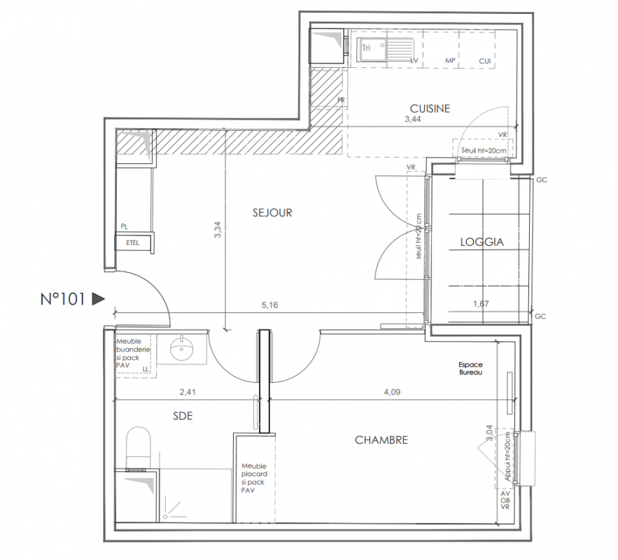
Type
Appt. au 0-RDC
Pièces
T2
Surface
42.21 m²
Exposition
Est
Ville
Évry (91000)
Livraison
4ème trimestre 2025
Informations
01 81 80 39 10

Présentation du programme "DESIGN"

Devenez propriétaire d’un appartement neuf à 32 km** au Sud de Paris grâce à la TVA réduite à 5,5%(1). Du 2 au 5 pièces duplex, les généreux appartements se déclinent en une large palette d’agencements pour vous offrir un lieu de vie sur mesure et serein dans un quartier résidentiel bien desservi. À proximité des grands axes et des zones d’activités, l’adresse se prête tout aussi parfaitement à vos projets d’investissement.




**source Googlemaps

(1) TVA réduite à 5,5% au lieu de 20% au 1?? janvier 2022 sous conditions de ressources et pour une acquisition en résidence principale sur la résidence «DESIGN» à Évry-Courcouronnes (91).

Autres logements T2 du programme "DESIGN"

Disponibilité Prix Genre Pièces Surface Étage
Voir
Disponible
212 000€ Appt. T2 40.94m2 0-RDC
DO NOT CLICK