406 000€
Appt. au 1er
T2
43.07 m²
Ouest
Garches (92380)
3ème trimestre 2028
01 81 80 39 10
Présentation du programme "Komo"
Situé dans un environnement exceptionnel d'un petit parc boisé, en retrait, la résidence Komo jouit d'une adresse de standing. Seulement 26 logements en accession libre, se répartissant du studio au 5 pièces, bénéficieront d'un quotidien calme, préservé, où tout est accessible à 5min à pied : centre commercial, pharmacie, salle de sports, boulangerie, écoles, restaurants ou encore marché primeurLes appartements présenteront des prestations de haut standing avec pour certains des séjours de plus de 60m2, des jardins de plus de 70m2 ou encore des rooftops privatifs.La programmation se complète d'une maison existante réhabilitée vendue en l'état ainsi que 12 dans un bâtiment distinct dans lequel l'association garchoise Le Sel de la Terre viendra créer une "maison partagée" pour des jeunes personnes handicapées. Le bailleur en sera Hauts-de-Seine HabitatSOLSIntérieursSéjour/chambres/dégagements : parquet contre collé / plinthes en boisCuisine/salle d'eau/salle de bains/cellier : Carrelage dimension 60x60 (ou 30x60)ExtérieursTerrasses et loggias étanchés surplombant des surfaces habitables : dalles 50x50 en béton posées sur plots PVC ou platelage bois en dalles ou lames Terrasses et loggias NON étanchés surplombant des surfaces non habitables : dalles béton teintées texturées avec forme de pente pour l'évacuation des eaux pluvialesBalcons : béton lissé arméMENUISERIES EXTERIEURESFenêtres et portes fenêtres à 1 ou 2 vantaux ouvrants à la française en PVCFERMETURES & OCCULTATIONSVolets roulants motorisés, intérieur ou extérieur à lames PVC ou aluminiumCHAUFFAGEProduction de chauffage collective assurée par une pompe à chaleur hybride gazLa PAC et la chaudière gaz seront installées chacune dans un local dédié en sous-solRadiateurs et sèche serviette à eau dans les pièces d'eau
Autres logements T2 du programme "Komo"
| Disponibilité | Prix | No | Genre | Pièces | Surface | Étage | Disponibilité | Prix | ||
|---|---|---|---|---|---|---|---|---|---|---|
| Voir | Disponible | 409 000€ | B026 | Appt. | T2 | 43.07m2 | 0-RDC | Disponible | 409 000€ | Voir |
| Voir | Disponible | 399 000€ | B027 | Appt. | T2 | 41.13m2 | 0-RDC | Disponible | 399 000€ | Voir |
| Voir | Disponible | 425 000€ | B029 | Appt. | T2 | 44.74m2 | 0-RDC | Disponible | 425 000€ | Voir |
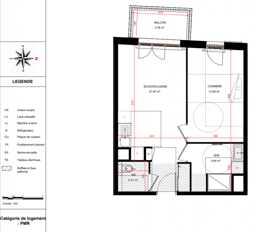
| Voir | Disponible | 406 000€ | B121 | Appt. | T2 | 44.81m2 | 1er | Disponible | 406 000€ | Voir |
| Voir | Disponible | 445 000€ | B226 | Appt. | T2 | 45.64m2 | 2ème | Disponible | 445 000€ | Voir |
| Voir | Disponible | 419 000€ | B227 | Appt. | T2 | 40.27m2 | 2ème | Disponible | 419 000€ | Voir |