Prix
522 000€
522 000€
Type
Appt. au 0-RDC
Appt. au 0-RDC
Pièces
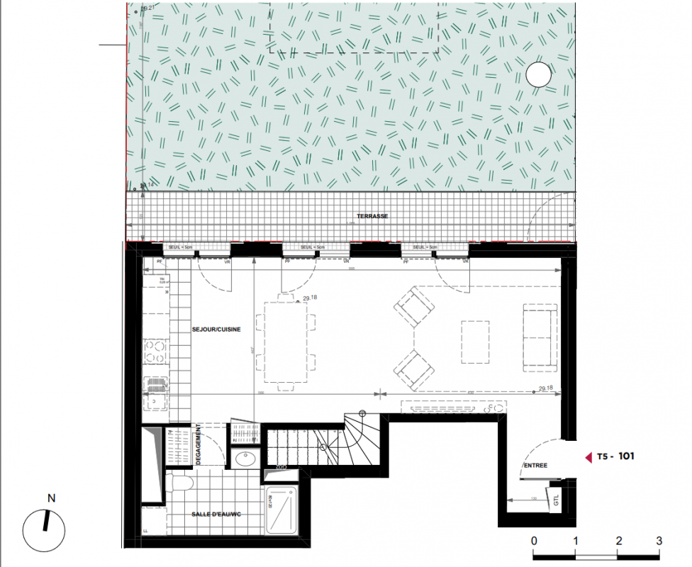
T5
T5
Surface
98 m²
98 m²
Exposition
Nord
Nord
Ville
Gennevilliers (92230)
Gennevilliers (92230)
Livraison
4ème trimestre 2027
4ème trimestre 2027
Informations
01 81 80 39 10
01 81 80 39 10
Présentation du programme "REPLAY"
dans un quartier qui offre de nouveaux commerces et des accès pratiques et rapides à la capitale. Le tramway T1 situé au pied du programme permet de rejoindre le métro 13 en 10 minutes puis Paris. REPLAY est une renaissance. Une nouvelle histoire. De cet ancien immeuble de bureaux, nous conservons la structure générale et y aménageons de grands lofts à l'inspiration industrielle aux superbes vues sur Paris (Tour Eiffel, Sacré Coeur, La Défense).

