Prix
288 100€
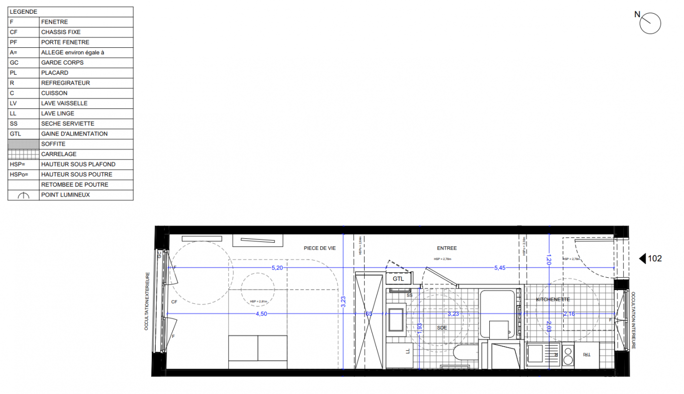
Type
Appt. au 1er
Pièces
Studio
Surface
32 m²
Exposition
-
Ville
Paris 17ème (75017)
Livraison
1er trimestre 2027
Informations
01 81 80 39 10

Présentation du programme "PATIO VILLIERS"

Situé dans le 17ème arrondissement, nous proposons de restructurer et transformer un garage en 41 appartements neufs allant du studio au 4 Pièces afin d'apporter une transition urbaine et écologique équilibrée entre la conservation de son identité (préservation de façades) et l'esprit de cette architecture. Les appartements bénéficieront d'une lumière naturelle grâce aux grandes baies vitrées et de prestations délicates soigneusement choisies qui sublimeront le confort de chacun. La création d'un patio végétal, de coursives intérieures et de toitures végétalisées fera écho au poumon vert de cet arrondissement, le Parc Monceau. La résidence se composera d'un CINASPIC au sous-sol et rez-de-chaussée et d'un local à vélos situé aussi au rdc. Le 17ème est un arrondissement branché, chic, bohème, mais surtout très recherché pour son cadre de vie, restaurants, bars à vin, ruelles aux nombreuses boutiques. Pour toutes informations complémentaires, prenez contact avec nous !

Autres logements Studio du programme "PATIO VILLIERS"

Disponibilité Prix Genre Pièces Surface Étage
Voir
Disponible
306 200€ Appt. Studio 32m2 3ème
Voir
Disponible
306 100€ Appt. Studio 32m2 3ème
DO NOT CLICK