Prix
350 000€
350 000€
Type
Appt. au 1er
Appt. au 1er
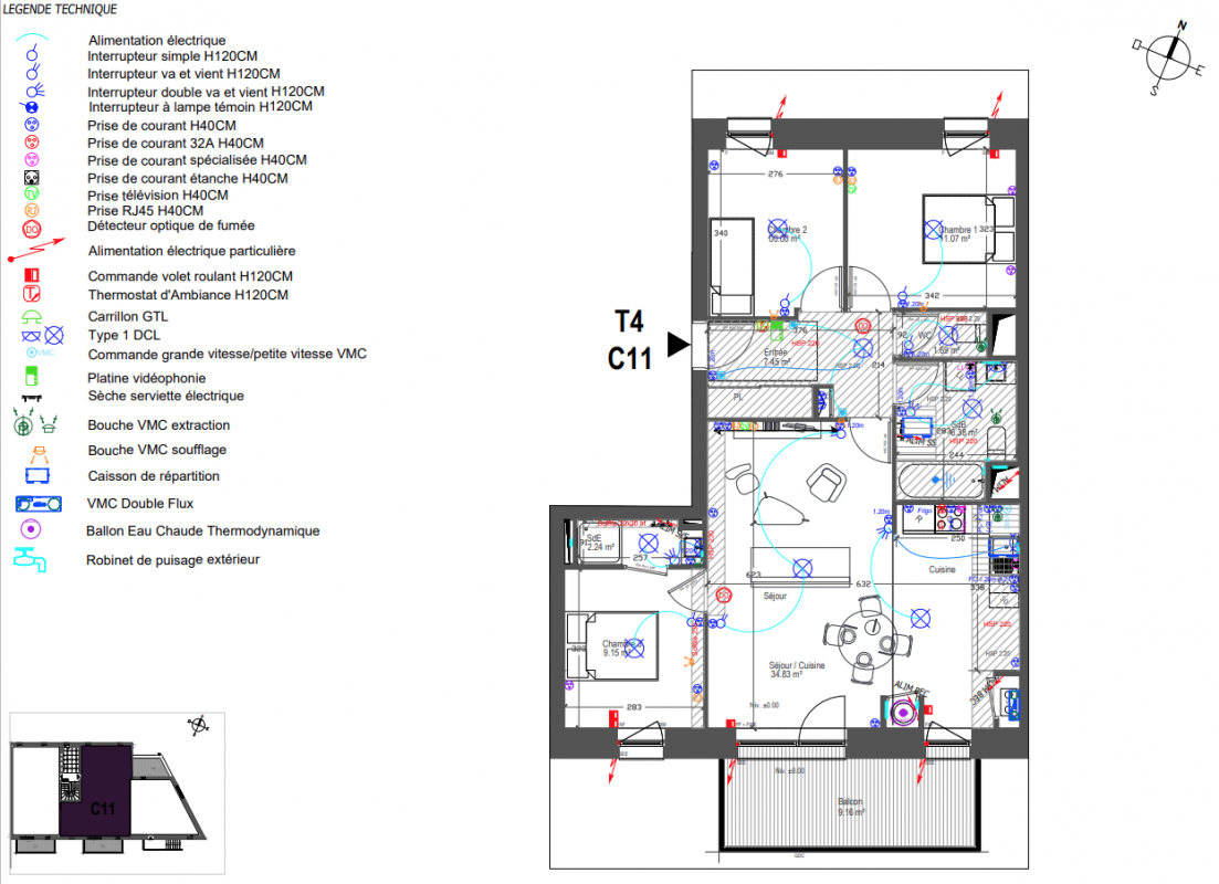
Pièces
T4
T4
Surface
80.96 m²
80.96 m²
Exposition
Sud
Sud
Ville
Coupvray (77700)
Coupvray (77700)
Livraison
1er trimestre 2025
1er trimestre 2025
Informations
01 81 80 39 10
01 81 80 39 10
Présentation du programme "DOMAINE DES ORMES"
LIVRAISON 2026. Située à Coupvray, à 400 mètres du centre-village, de ses commerces, services et des transports en commun, la résidence LE DOMAINE DES ORMES est composée de 63 logements, du studio au T5, répartis en 7 petits bâtiments. Chaque logement dispose d’espaces extérieurs, souvent exposés au sud, et bénéficie d’une isolation performante. La résidence respecte les normes RE 2020 et bénéficie de plusieurs labels en faisant un lieu écoresponsable et respectueux de l’environnement. Elle offre l’opportunité d’habiter dans un appartement neuf au cœur d’un nouveau quartier, véritable havre de paix niché au cœur de la nature. Éligible au nouveau dispositif Jeanbrun (statut du bailleur privé) + au dispositif LLI.

