Prix
408 000€
Type
Appt. au 4ème
Pièces
T4
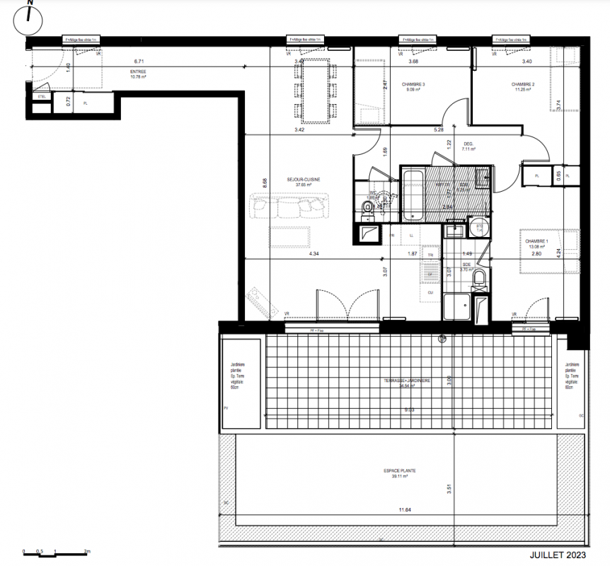
Surface
99.76 m²
Exposition
Sud
Ville
Meaux (77100)
Livraison
1er trimestre 2029
Informations
01 81 80 39 10

Présentation du programme "Square Foch"

Accéder à la maquette 3D de Square FochSur l’avenue du Maréchal Foch, à l’angle des rues Léon leRoyer et Paul Prunet, la résidence Square Foch intègreun ensemble venant moderniser l'adresse : salle de sport, workingcafé, hôtel 3 étoiles, espaces de coliving, commerces au pied du programme et crèche créent une véritable vie de quartier contribue à dessiner le nouveau visage du centre ville.La résidence a un style architectural moderne et épuré. Elle propose des appartements allant du studio au 5 pièces qui profitent d’une ouverture surl’extérieur avec balcon, jardin en rez-de-chaussée, ou terrasse plein ciel.Des villas sur le toit offrent des espaces exceptionnels. RESIDENCEPerformance énergétique : les logements répondront à la RE 2020Diversité des typologies pour favoriser une mixité des usagesExtérieur pour chaque logement : balcons de taille standard, larges terrasses (moyenne à 25m2, certaines > 75m2)1 à 2 place(s) de stationnement par appartementENVIRONNEMENTSquare Foch est idéalement située, notamment pour les familles, avec les écoles et le collège voisinA quelques pas du programmeServices de proximité => salle de sport, café Commerces du quotidien => boulangerie, supermarché, banqueRevêtement linoléum pour les séjours Carrelage pour les salles d’eau et les cuisines Salles de bain équipées d’un meuble vasqueavec sous-plan vasque avec tiroirs, un miroiret une réglette LED Sèche-serviette électrique Fenêtres et portes-fenêtres en PVC, ouvrantes àla française, oscillo-battantes avec parties fixes (double vitrage)Vitrage en verre granité ou translucide dansles salles d’eau Volets roulants PVC à commande manuelle• Porte anti-effraction, serrure 3 points A2P* Accès à l’entrée par vigik et vidéophoneBornes de recharge électriqueA 10 min à pied du "pôle Luxembourg" accueillant marché et commerces de bouche, médiathèque, IUT de MeauxA 10 min à pied de la plage de Meaux proposant des activités et sports nautiquesA 10 min à pied du parc du Pâtis pour les balades, jogging, moment de détente en familleA 17 min à pied de la gare de Meaux / 6min en vélo

Autres logements T4 du programme "Square Foch"

Pas de logements disponibles
DO NOT CLICK