Prix
220 000€
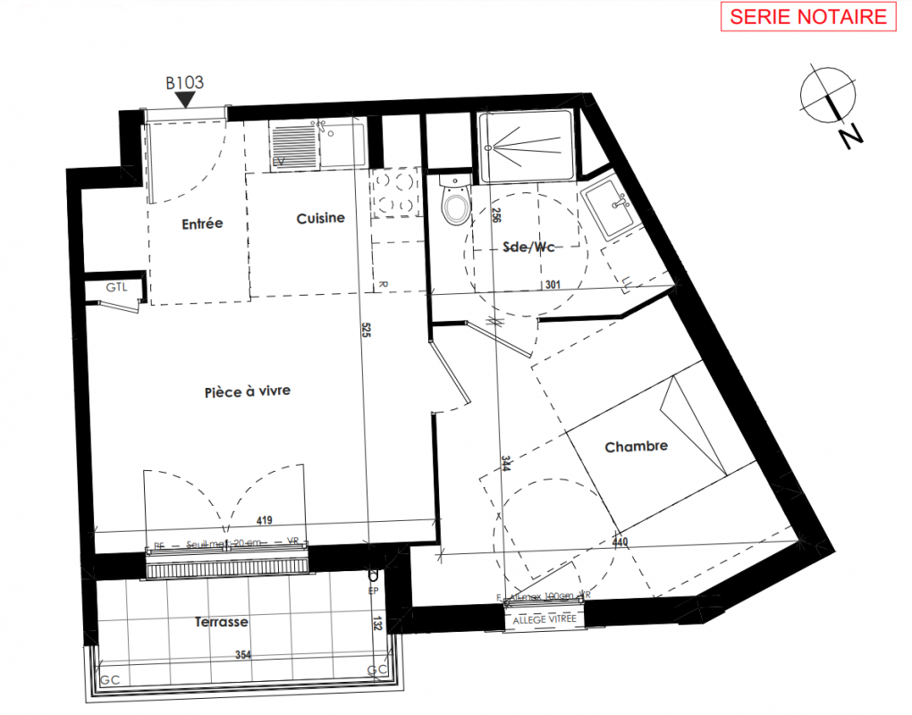
Type
Appt. au 1er
Pièces
T2
Surface
39.88 m²
Exposition
-
Ville
Roissy-en-Brie (77680)
Livraison
2ème trimestre 2027
Informations
01 81 80 39 10

Présentation du programme "Synopsis"

[NOUVEAU DISPOSITIF JEANBRUN : réduisez vos impôts et augmentez votre rentabilité !]

TRAVAUX EN COURS - Découvrez la résidence Synopsis dans le CENTRE-VILLE de ROISSY-EN-BRIE (77). Appartements neufs du studio au 4 pièces familial. Surfaces extérieures (jardin, terrasse ou balcon) pour la majorité des logements. Prestations de qualité sélectionnées pour le bien-être des résidents : large gamme de carrelages et faïences murales, volets roulants, locaux vélos équipés, espace de coworking. Prix communiqués PARKING INCLUS (hors studios et certains 2 pièces). Résidence éligible PTZ.

Autres logements T2 du programme "Synopsis"

Disponibilité Prix Genre Pièces Surface Étage
Voir
Disponible
226 000€ Appt. T2 39.88m2 3ème
Voir
Disponible
245 000€ Appt. T2 42.56m2 0-RDC
Voir
Disponible
250 000€ Appt. T2 45.7m2 4ème
Voir
Disponible
255 000€ Appt. T2 47.52m2 4ème
Voir
Optionné
202 000€ Appt. T2 35.09m2 1er
DO NOT CLICK