295 200€ (TVA 20%)
259 530€ (TVA 5.5%)
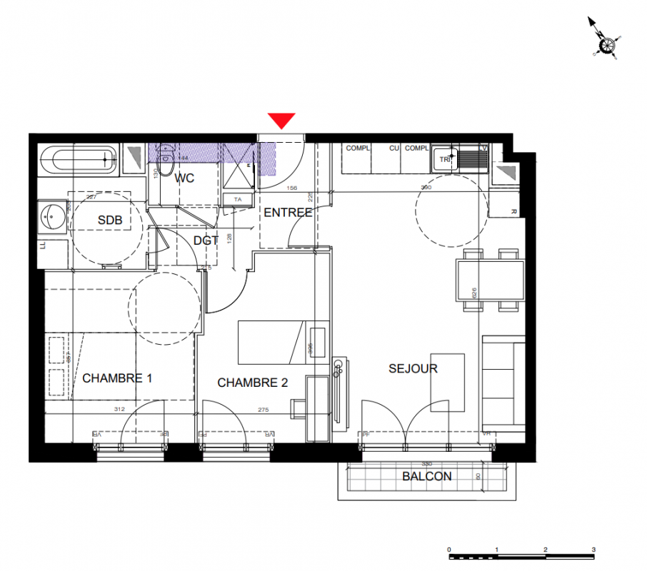
Appt. au 4ème
T3
60.91 m²
-
Drancy (93700)
4ème trimestre 2027
01 81 80 39 10
Présentation du programme "Le 139"
Le 139 - Votre nouvelle adresse en coeur de ville à Drancy
Idéalement située au 139-147 Avenue Henri Barbusse, face au futur marché et à seulement 8 minutes de la gare, la résidence Le 139 vous offre un quotidien pratique et connecté : rejoignez Châtelet-les-Halles en 17 minutes !
À proximité immédiate des commerces, des transports et du Parc de Ladoucette, cette résidence contemporaine vous propose un cadre de vie paisible au coeur d'un environnement urbain dynamique.
Découvrez nos 63 appartements, du 2 au 4 pièces, tous accompagnés d'une place de parking et d'un local à vélos, pour un confort de vie optimal.
✅ TVA réduite possible pour les acquéreurs éligibles
Îlot paysager privatif pour se détendre au pied de la résidence
Accès rapide à Paris et aux grands axes
Ne ratez pas cette opportunité unique de devenir propriétaire aux portes de Paris !
Contactez-nous dès maintenant pour en savoir plus.
Autres logements T3 du programme "Le 139"
| Disponibilité | Prix | No | Genre | Pièces | Surface | Étage | Disponibilité | Prix | ||
|---|---|---|---|---|---|---|---|---|---|---|
| Voir | Disponible | 289 200€ | C304 | Appt. | T3 | 60.92m2 | 3ème | Disponible | 289 200€ | Voir |
| Voir | Disponible | 279 600€ | C102 | Appt. | T3 | 62.14m2 | 1er | Disponible | 279 600€ | Voir |
| Voir | Disponible | 285 600€ | C202 | Appt. | T3 | 62.14m2 | 2ème | Disponible | 285 600€ | Voir |
| Voir | Disponible | 297 600€ | C402 | Appt. | T3 | 62.17m2 | 4ème | Disponible | 297 600€ | Voir |