Prix
349 000€
Type
Appt. au 2ème
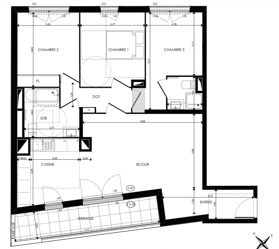
Pièces
T4
Surface
83.67 m²
Exposition
-
Ville
Le Blanc-Mesnil (93150)
Livraison
2ème trimestre 2026
Informations
01 81 80 39 10

Présentation du programme "Villa Auber"

Au cœur du Blanc-Mesnil, un environnement privilégié
À 8 km de Paris, Le Blanc-Mesnil constitue une adresse idéale pour investir aujourd’hui dans l’Est parisien. Parfaitement intégrée dans le bassin d’emplois de Roissy et du Bourget, la ville développe de nombreuses zones d’activités attirant des entreprises d’envergure internationale comme Miele. Une attractivité qui devrait bondir avec l’arrivée prochaine de la ligne 16 du Grand Paris Express qui placera les Blanc-Mesnilois à 10 min de Saint Denis et 15 min de Noisy-Champs, grand pôle d’affaires francilien. Ce chantier redessine le cœur de la ville, apporte des embellissements notables et offre de nouvelles commodités. À 500 m de la future station de métro, cette nouvelle résidence profite pleinement de ce renouveau urbain et vous garantit forte demande locative et valorisation intéressante.

Autres logements T4 du programme "Villa Auber"

Disponibilité Prix Genre Pièces Surface Étage
Voir
Disponible
389 000€ Appt. T4 97.88m2 1er
DO NOT CLICK