Ce lot n’est plus disponible chez VIANOVA ou est vendu.

Vous pouvez revenir dans 24h pour vérifier le stock à jour ou contacter un conseiller Vianova pour vérifier le stock en direct.
Vous pouvez également continuer votre recherche sur notre site « ici ».

Prix
318 000€
Type
Appt. au 2ème
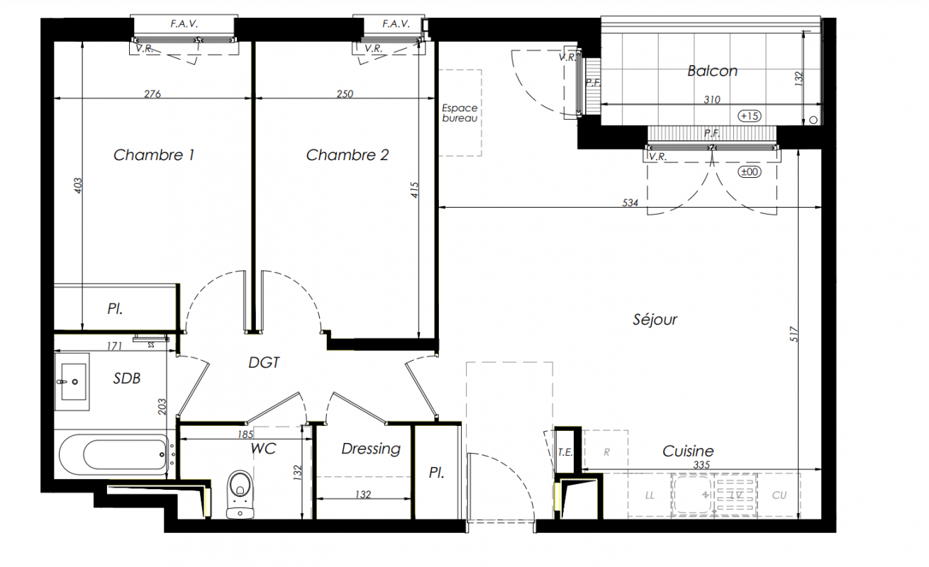
Pièces
T3
Surface
63.01 m²
Exposition
Ouest
Ville
Noisy-le-Grand (93160)
Livraison
2ème trimestre 2027
Informations
01 81 80 39 10

Présentation du programme "L'Îlorizon"

Une résidence intimiste au calme
À seulement 20 minutes de Paris, Noisy-le-Grand allie dynamisme économique et cadre de vie agréable. Avec son centre-ville briard et ses bords de Marne aménagés, cette commune à l’esprit champêtre abrite également le pôle d’affaires Noisy-Mont d’Est, le 3ᵉ cœur économique de l’Île-de-France, accueillant des entreprises leaders de leur secteur telles qu’Orange, la RATP et Lavazza.Déjà desservie par les RER A et E, la ville est en passe de devenir un hub de transport avec les futures lignes de métro 15 Sud, 11 et 16. Dans un quartier résidentiel près des bords de Marne, Kaufman & Broad propose une élégante résidence contemporaine avec balcons ou terrasses, offrant un cadre de vie idéal pour les résidents.*Source : Google Maps

Autres logements T3 du programme "L'Îlorizon"

Pas de logements disponibles
DO NOT CLICK