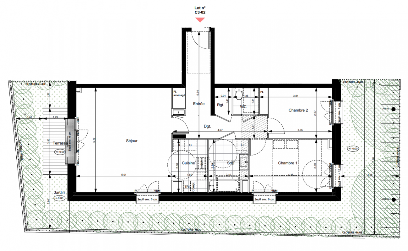
Appt. n°C3-02

Programme "NATURA"
Prix
405 000€
Type
Appt. au 0-RDC
Pièces
T3
Surface
75 m²
Exposition
Est
Ville
Noisy-le-Grand (93160)
Livraison
1er trimestre 2026
Informations
01 81 80 39 10

Présentation du programme "NATURA"

Au sein du quartier des Bas-Heurts, une nouvelle vie se dessine dans une résidence moderne et inspirée qui fait la part belle aux espaces verts.Entre la rue des Bas-Heurts et la rue des Aulnettes, NATURA se démarque par son architecture novatrice et s’intègre de manière naturelle à son environnement direct. L’ensemble de la résidence se distingue par son architecture qui met en scène les différents matériaux qui alternent entre le bois et les enduits clairs. Un rythme architectural qui donne le ton et se remarque. Avec son îlot central végétalisé, la résidence met en lumière avec brio des espaces privés et communs extérieurs. NATURA rassemble une nouvelle génération d’habitat urbain : l’intimité d’un confort intérieur sublimé par le privilège d’espaces de vie en extérieur.

Autres logements T3 du programme "NATURA"

Disponibilité Prix Genre Pièces Surface Étage
Voir
Disponible
380 000€ Appt. T3 63m2 0-RDC
Voir
Disponible
375 000€ Appt. T3 64m2 2ème
DO NOT CLICK