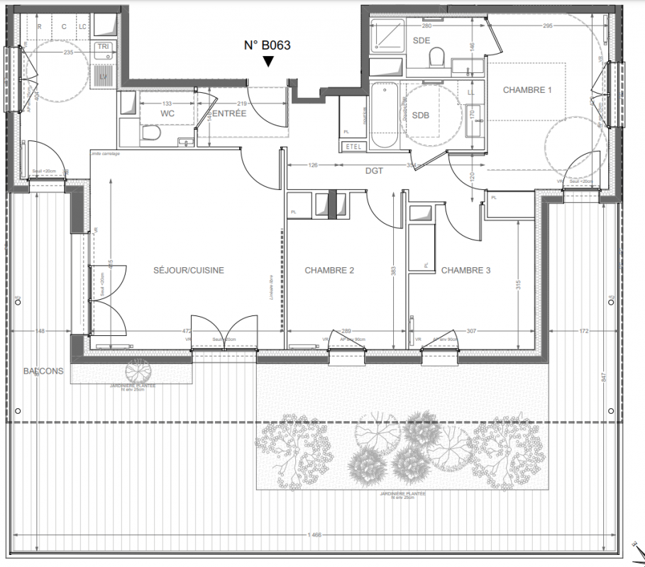
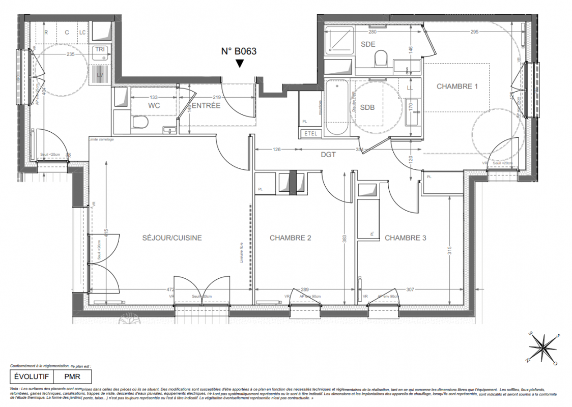
Prix
722 424€
Type
Appt. au 6ème
Pièces
T4
Surface
86.43 m²
Exposition
Sud-Est
Ville
Saint-Ouen (93400)
Livraison
1er trimestre 2029
Informations
01 81 80 39 10

Présentation du programme "RUE PIERRE - CHAPITRE 5 - R9A"


Menuiseries extérieures bois
Occultation à par volet roulant aluminium
Chapes acoustiques
Parquet contrecollé ou massif dans toutes les pièces sèches
Carrelage en grès cérame au sol dans les pièces humides
Faïence en grès émaillé dans les salles de bains / salles d’eau à hauteur d’huisserie au droit des équipements
Meuble lave-mains dans les WC indépendant
Meuble vasque avec miroir et bandeau lumineux dans les SDB/SDE
Colonne de douche et paroi de douche
Bac à douche sans ressaut
Baignoire (170x75)
WC suspendu
Portes intérieures logements de 2m14 à âme pleine
Chauffage Urbain / CPCU

Autres logements T4 du programme "RUE PIERRE - CHAPITRE 5 - R9A"

Disponibilité Prix Genre Pièces Surface Étage
Voir
Disponible
663 321€ Appt. T4 84.84m2 4ème
Voir
Optionné
665 866€ Appt. T4 84.84m2 5ème
DO NOT CLICK