Prix
614 218€ (TVA 20%)
540 000€ (TVA 5.5%)
614 218€ (TVA 20%)
540 000€ (TVA 5.5%)
Type
Appt. au 1er
Appt. au 1er
Pièces
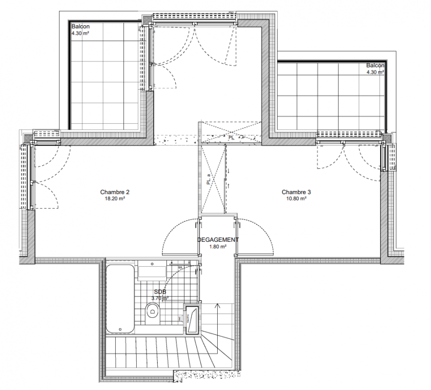
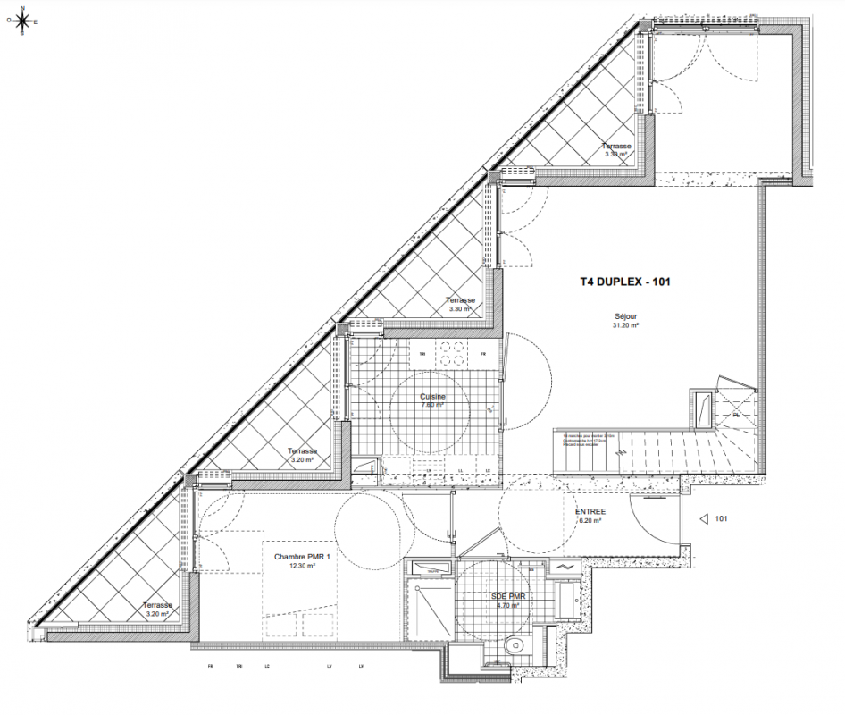
T4
T4
Surface
96 m²
96 m²
Exposition
Nord-Ouest
Nord-Ouest
Ville
Saint-Ouen (93400)
Saint-Ouen (93400)
Livraison
4ème trimestre 2025
4ème trimestre 2025
Informations
01 81 80 39 10
01 81 80 39 10
Présentation du programme "SO HERITAGE"
VENEZ VISITER nos appartements décorés !VIVEZ L'HERITAGE DANS LE VILLAGE DES ATHLETES
Venez visiter sur rendez vous des logements d'exceptions neufs aux prestations de standings situés dans le quartier le plus emblématique de Saint-Ouen-sur-Seine : le Village des Athlètes.
Vues imprenables sur la Seine, et Paris espaces extérieurs privatifs, TVA réduite, prêt à taux 0% (sous condition de ressource) frais de notaire réduits: une opportunité rare pour habiter ou investir dans un cadre unique.
Contactez dès à présent notre équipe commerciale pour convenir d'un rendez vous.

