Prix
206 490€
206 490€
Type
Appt. au 5ème
Appt. au 5ème
Pièces
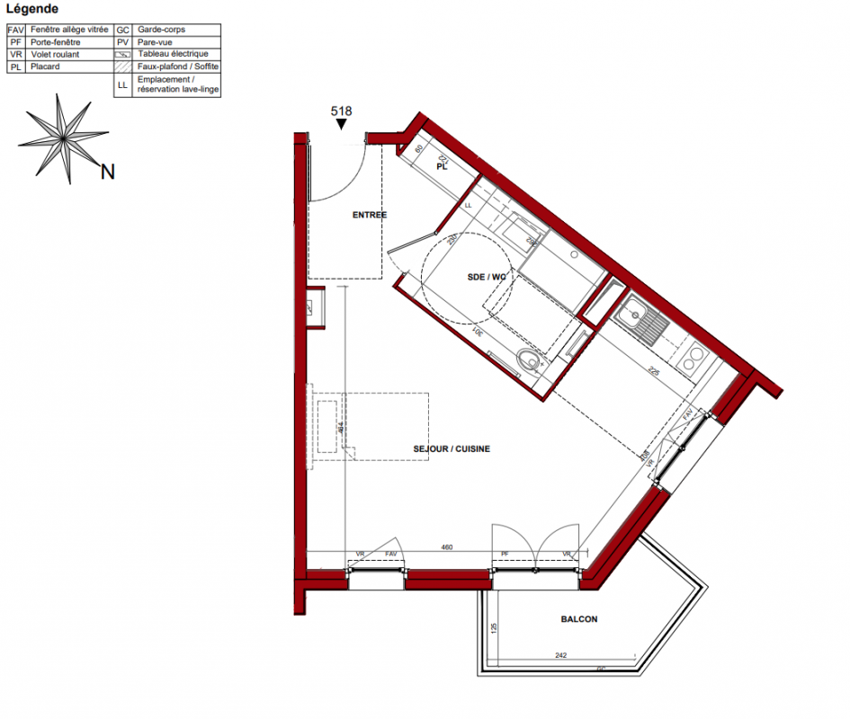
Studio
Studio
Surface
35 m²
35 m²
Exposition
Nord
Nord
Ville
Bouffémont (95570)
Bouffémont (95570)
Livraison
1er trimestre 2027
1er trimestre 2027
Informations
01 81 80 39 10
01 81 80 39 10
Présentation du programme "CASTANEA"
Découvrez 'CASTANEA', une nouvelle résidence services Seniors et choisissez parmi une sélection d'appartements neufs et meublés. Vous pourrez ainsi vous construire un patrimoine sûr et garanti pour vivre ou investir ! Cette dernière, composée de 104 logements du studio au 3 pièces et proposant de nombreux services : restauration, piscine, espaces club... est gérée par un leader de la résidence services seniors Domitys. Pour toute information complémentaire, prenez contact avec nos conseillers de vente ! Pour toutes informations complémentaires, prenez contact avec nous !