Prix
266 500€
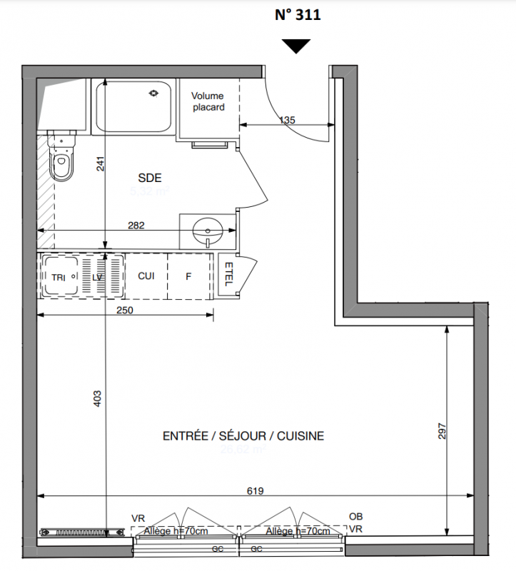
266 500€
Type
Appt. au 1er
Appt. au 1er
Pièces
Studio
Studio
Surface
31.94 m²
31.94 m²
Exposition
Sud
Sud
Ville
Alfortville (94140)
Alfortville (94140)
Livraison
1er trimestre 2028
1er trimestre 2028
Informations
01 81 80 39 10
01 81 80 39 10
Présentation du programme "REFELETS DE SEINE"
Face à la Seine et à 10 min à pied des transports en commun, la résidence signée Vianova vous propose des appartements neufs du studio au 5 pièces. Bien agencés et prolongés pour la plupart par un espace extérieur privatif, ils vous offrent une belle qualité de vie.
Autres logements Studio du programme "REFELETS DE SEINE"
| Disponibilité | Prix | No | Genre | Pièces | Surface | Étage | Disponibilité | Prix | ||
|---|---|---|---|---|---|---|---|---|---|---|
| Voir | Disponible | 245 000€ | 112 | Appt. | Studio | 28.57m2 | 1er | Disponible | 245 000€ | Voir |
| Voir | Disponible | 247 450€ | 324 | Appt. | Studio | 30m2 | 2ème | Disponible | 247 450€ | Voir |
| Voir | Disponible | 262 000€ | 317 | Appt. | Studio | 33.25m2 | 1er | Disponible | 262 000€ | Voir |
| Voir | Optionné | 277 000€ | 341 | Appt. | Studio | 35.22m2 | 4ème | Optionné Mais pas encore vendu 😉 | 277 000€ | Voir |