Prix
Type
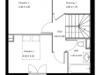
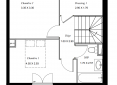
Maison au 0-RDC
Pièces
T4
Surface
96.59 m²
Exposition
Nord-Ouest
Ville
Chennevières-sur-Marne (94430)
Livraison
3ème trimestre 2025
Informations
01 81 80 39 10

Présentation du programme "Les Demeures des Coteaux"

C'est une vraie qualité de vie, associée aux atouts de la mobilité, que propose le programme immobilier neuf Demeures des Coteaux. Sur l'axe Paris Marne-la-Vallée, à proximité de l'A86 et de l'A4, d'Orly et du RER A, vous profitez de l'essor de l'Est parisien. À la gare de Saint-Maur-Créteil, à 4,7 km de ce programme neuf, arrivera prochainement la ligne 15* Sud du Grand Paris Express. Programme RT 2012 bénéficiant d'un environnement très verdoyant.* Mise en service 2025 source : societedugrandparis.fr

Autres logements T4 du programme "Les Demeures des Coteaux"

Disponibilité Prix Genre Pièces Surface Étage
Voir
Disponible
Maison T4 96.73m2 0-RDC
Voir
Disponible
Maison T4 96.59m2 0-RDC
DO NOT CLICK