Ce lot n’est plus disponible chez VIANOVA ou est vendu.

Vous pouvez revenir dans 24h pour vérifier le stock à jour ou contacter un conseiller Vianova pour vérifier le stock en direct.
Vous pouvez également continuer votre recherche sur notre site « ici ».

Prix
354 000€  (TVA 20%)
311 225€  (TVA 5.5%)
Type
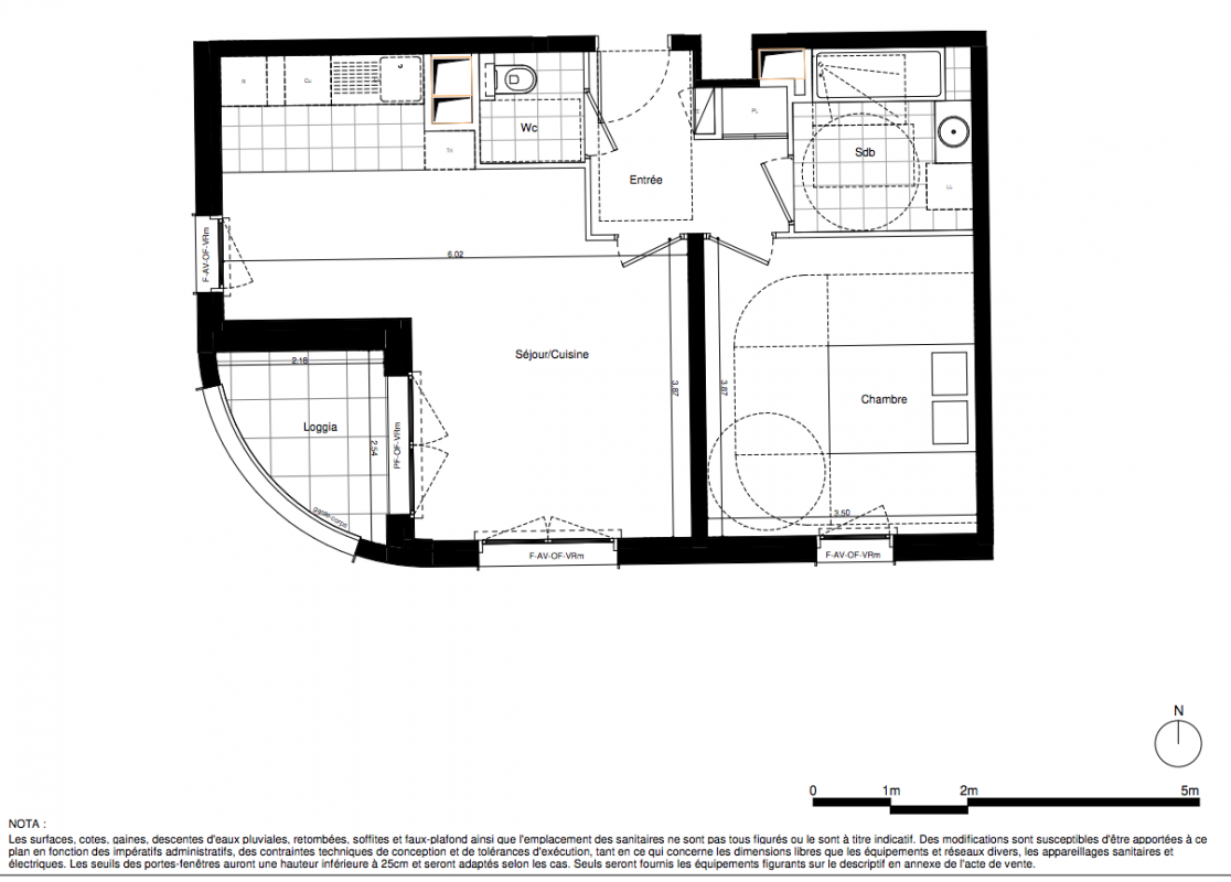
Appt. au 0-RDC
Pièces
T2
Surface
50.9 m²
Exposition
-
Ville
L'Haÿ-les-Roses (94240)
Livraison
1er trimestre 2027
Informations
01 81 80 39 10

Présentation du programme "HAUTREMENT"

 Le programme immobilier HAUTREMENT propose des appartements neufs du studio au 5 pièces duplex avec balcons, loggias, terrasses plein ciel pour certains et tous les atouts d’une haute qualité de vie.À 5 km* de Paris, la résidence est desservie par le bus V2, le tramway T7, le métro L7 et les futures lignes 14 et 15. La piste cyclable ou l'A6 permettent de rejoindre Paris en quelques minutes. 

Autres logements T2 du programme "HAUTREMENT"

Disponibilité Prix Genre Pièces Surface Étage
Voir
Optionné
320 687€ Appt. T2 43.6m2 0-RDC
DO NOT CLICK