Prix
242 000€
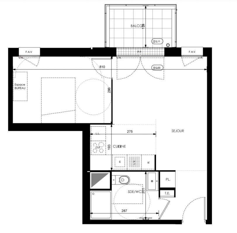
Type
Appt. au 2ème
Pièces
T2
Surface
40.97 m²
Exposition
Est
Ville
Orly (94310)
Livraison
3ème trimestre 2027
Informations
01 81 80 39 10

Présentation du programme "Villas du Vercors"

Un écoquartier paisible et connecté répondant à toutes les envies
À 25 min* de Châtelet et du cœur de Paris, Orly-la-Ville offre une équation stratégique entre l’excellence de sa desserte en transports, le confort de son cadre de vie et des prix de l’immobilier attractifs, assurant un rendement locatif intéressant.Située dans un écoquartier verdoyant et proche du centre historique de la commune cette nouvelle résidence réunit tous les atouts d’un habitat contemporain à la fois convivial, paisible et économe. Du 2 au 4 pièces, les appartements se prêtent à tous les projets locatifs en location vide ou meublée. *Source : Google Maps

Autres logements T2 du programme "Villas du Vercors"

Pas de logements disponibles
DO NOT CLICK