534 000€
Appt. au 1er
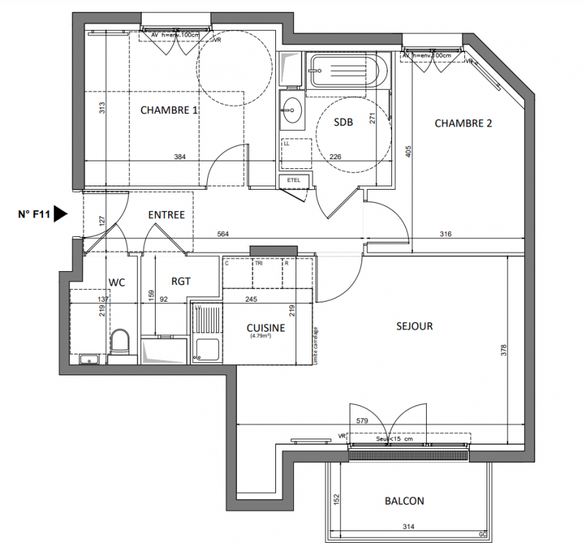
T3
64.1 m²
-
Saint-Maur-des-Fossés (94100)
4ème trimestre 2027
01 81 80 39 10
Présentation du programme "Avenue Cavaignac"
Menuiseries extérieures mixtes bois aluminium
Volets roulants en aluminium, commande électrique, coffres en médium
Meuble vasque avec miroir
WC suspendus et lave-mains dans WC indépendant (suivant plans)
Revêtement contrecollé lames larges dans les pièces sèches
Revêtement carrelage grand format dans les salles d’eau
Faïence grand format sur 2 murs dans la salle d’eau ou salle de bains à hauteur d’huisseries
Cloisons épaisseur 7 cm dans l’ensemble des logements neufs
Équipement intérieur des placards
Chauffage par pompe à chaleur
Accès par digicode et vidéophone
Les atouts
Dans un quartier vivant regroupant toutes les commodités
Près du RER A et à une station de la future ligne M15
Commerces et services en pied d’immeuble
Des appartements neufs du studio au 4 pièces
Espace extérieur pour la plupart dont de belles terrasses
Le confort du neuf et des prestations de standing
A proximité
Aux pieds de la résidence l'arrêt de bus (ligne 107)
A 4 minutes à pied du RER A et du métro (future ligne 15)
A 2 minutes à pied du bus (lignes 107, 317, N35, N71)
A moins de 10 minutes à pied des commerces, crèches et écoles supermarché..
A 10 minutes en vélo de la base nautique RolandBouchier de Champigny-sur-Marne
A seulement 13 km du cœur de la capitale