Prix
547 000€
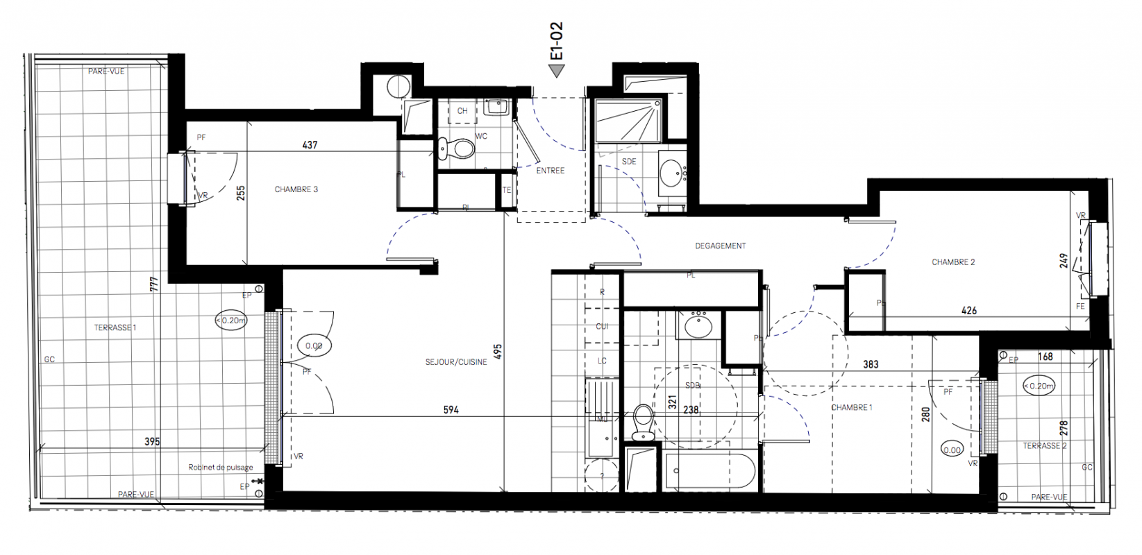
Type
Appt. au 1er
Pièces
T4
Surface
80.32 m²
Exposition
Est
Ville
Villejuif (94800)
Livraison
1er trimestre 2027
Informations
01 81 80 39 10

Présentation du programme "Les Jardins d'Aragon"

A Villejuif : une résidence de standing au cœur d’une ville animée et connectée
Investir à Villejuif, c’est faire le choix d’une adresse au potentiel locatif immense, qui vous assure une belle rentabilité et des perspectives de valorisation des plus intéressantes. Placée sur l’artère commerçante et animée de Villejuif, cette nouvelle résidence vous propose des appartements de 4 et 5 pièces duplex. A quelques minutes à pied du cœur de ville et des établissements scolaires, venez découvrir une architecture moderne, laissant la part belle à de généreux espaces extérieurs. Au pied de l’immeuble, retrouvez la station « Louis Aragon » desservie par le métro 7, le tramway T7 et de nombreuses lignes de bus et un Noctilien. Vos locataires rejoignent les bassins d’emploi de Rungis en 17 min et d’Orly en 30 min par le T7. Cette offre sera bientôt complétée par la ligne 15 du Grand Paris Express qui leur permettra de rayonner dans toute la petite couronne.

Autres logements T4 du programme "Les Jardins d'Aragon"

Disponibilité Prix Genre Pièces Surface Étage
Voir
Disponible
539 000€ Appt. T4 80.32m2 2ème
Voir
Disponible
548 000€ Appt. T4 80.32m2 4ème
DO NOT CLICK