435 205€ (TVA 20%)
382 618€ (TVA 5.5%)
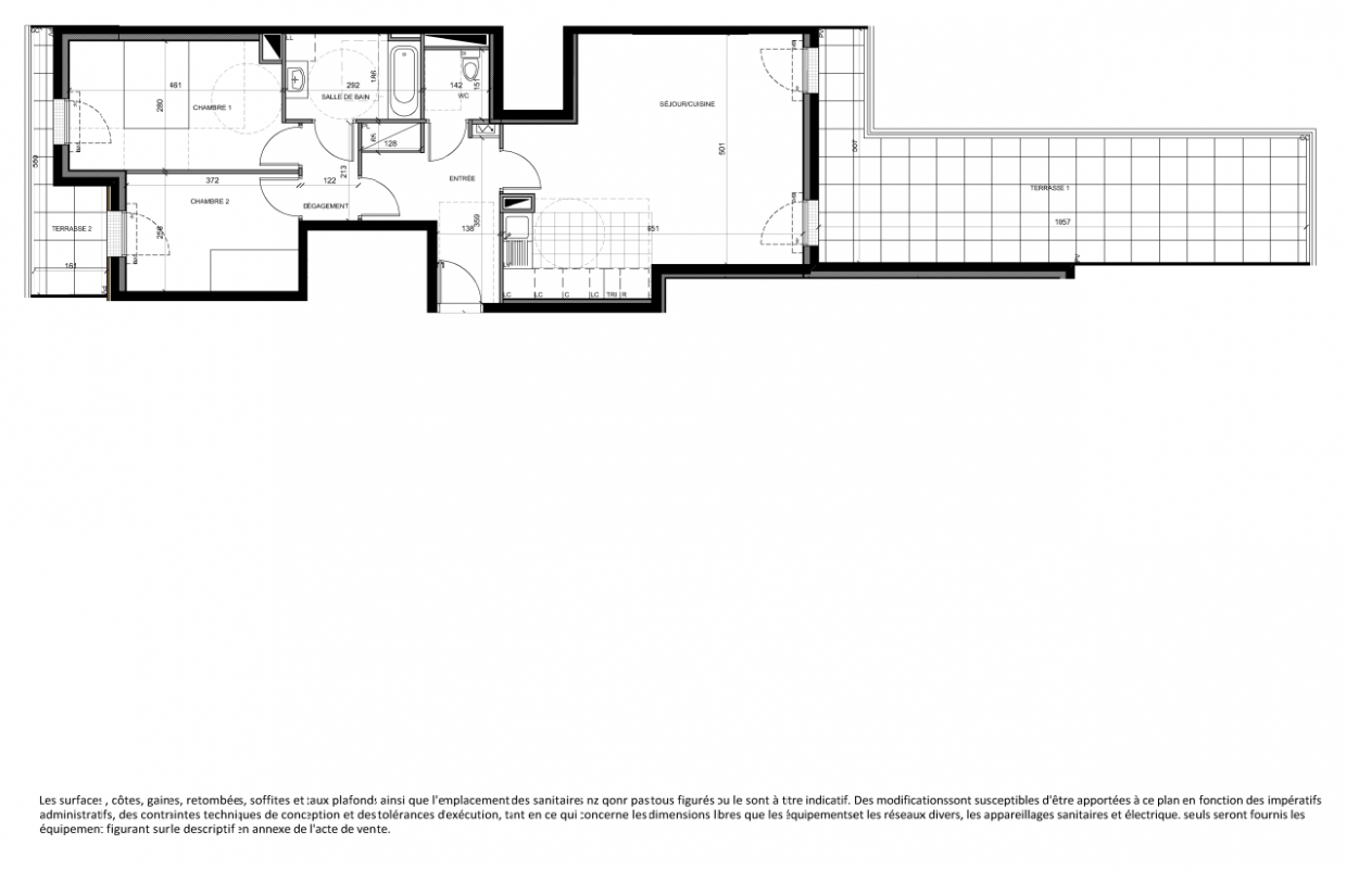
Appt. au 0-RDC
T3
77.41 m²
-
Villiers-sur-Marne (94350)
4ème trimestre 2027
01 81 80 39 10
Présentation du programme "Domaine Des Prunais (Bâtiment A)"
Nichée dans un environnement paisible et verdoyant, notre nouvelle résidence s’apprête à voir le jour et à offrir un cadre de vie harmonieux, à la fois moderne et intimement connecté à la nature. Avec son architecture élégante, ses lignes contemporaines et ses matériaux soigneusement sélectionnés, elle s’inscrit parfaitement dans son environnement tout en affirmant une identité forte et intemporelle.La conception des appartements neufs du studio au 5 pièces a été pensée pour répondre aux plus hautes exigences de confort : généreuses surfaces, luminosité naturelle omniprésente, agencements optimisés et prestations de qualité. Chaque logement bénéficie d’un espace extérieur – balcon, terrasse panoramique ou jardin privatif.Des commerces et restaurants viendront animer les rez-de-chaussée, créant un lien naturel entre les habitants et les acteurs du quartier. Une nouvelle centralité. Mais ce projet va encore plus loin. Il propose un véritable retour à l’essentiel avec des espaces communs inédits : un verger partagé, un potager collaboratif, un jardin d’enfants, ouverts à tous les résidents. Des lieux pensés pour cultiver à la fois la terre… et les liens humains.Parfaitement connectée, la résidence bénéficie d’un emplacement stratégique à seulement 10 minutes* de la gare du Grand Paris Noisy–Champs, accessible directement en bus ou en voiture. Véritable hub de mobilité, cette gare figure parmi les plus importantes d’Île-de-France, reliant rapidement Paris et les grands pôles économiques de la métropole. Une accessibilité précieuse qui renforce l’attractivité du projet, aussi bien pour les résidents actifs que pour les investisseurs en quête de valorisation durable.
Autres logements T3 du programme "Domaine Des Prunais (Bâtiment A)"
| Disponibilité | Prix | No | Genre | Pièces | Surface | Étage | Disponibilité | Prix | ||
|---|---|---|---|---|---|---|---|---|---|---|
| Voir | Disponible | 366 577€ | A1 204 | Appt. | T3 | 66.69m2 | 0-RDC | Disponible | 366 577€ | Voir |
| Voir | Disponible | 394 650€ | A2 003 | Appt. | T3 | 70.67m2 Le bon plan | 0-RDC | Disponible | 394 650€ | Voir |
| Voir | Disponible | 365 593€ | A2 106 | Appt. | T3 | 68.57m2 | 0-RDC | Disponible | 365 593€ | Voir |
| Voir | Disponible | 374 903€ | A2 301 | Appt. | T3 | 70.86m2 | 0-RDC | Disponible | 374 903€ | Voir |
| Voir | Disponible | 363 538€ | A1 303 | Appt. | T3 | 67.13m2 | 0-RDC | Disponible | 363 538€ | Voir |
| Voir | Disponible | 373 517€ | A1 304 | Appt. | T3 | 66.69m2 | 0-RDC | Disponible | 373 517€ | Voir |
| Voir | Disponible | 368 588€ | A1 403 | Appt. | T3 | 67.13m2 | 0-RDC | Disponible | 368 588€ | Voir |
| Voir | Disponible | 373 487€ | A2 001 | Appt. | T3 | 71.09m2 | 0-RDC | Disponible | 373 487€ | Voir |
| Voir | Disponible | 380 904€ | A2 005 | Appt. | T3 | 68.57m2 | 0-RDC | Disponible | 380 904€ | Voir |
| Voir | Disponible | 375 031€ | A2 102 | Appt. | T3 | 72.39m2 | 0-RDC | Disponible | 375 031€ | Voir |
| Voir | Disponible | 368 077€ | A2 201 | Appt. | T3 | 71.09m2 | 0-RDC | Disponible | 368 077€ | Voir |
| Voir | Disponible | 389 517€ | A2 202 | Appt. | T3 | 72.39m2 | 0-RDC | Disponible | 389 517€ | Voir |
| Voir | Disponible | 380 932€ | A2 205 | Appt. | T3 | 68.57m2 | 0-RDC | Disponible | 380 932€ | Voir |
| Voir | Disponible | 398 629€ | A2 302 | Appt. | T3 | 72.39m2 | 0-RDC | Disponible | 398 629€ | Voir |