309 000€
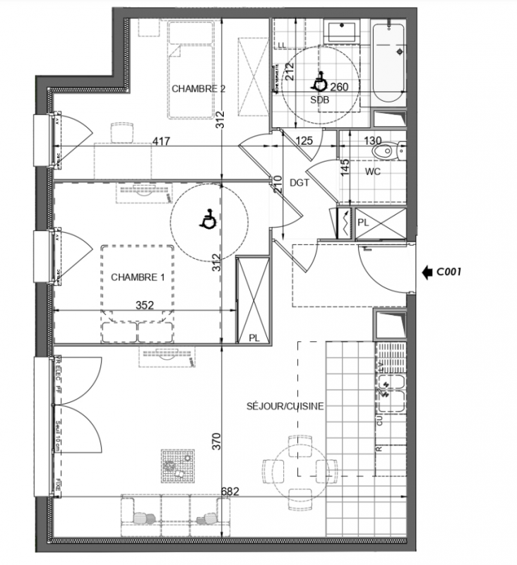
Appt. au 0-RDC
T2
56.6 m²
-
Bois-d'Arcy (78390)
3ème trimestre 2026
01 81 80 39 10
Présentation du programme "Agora"
DEVENEZ PROPRIETAIRE DE VOTRE MAISON OU APPARTEMENT DANS UN NOUVEAU QUARTIER AU COEUR DE BOIS D'ARCY !
À Bois d’Arcy, dans une commune verdoyante, face à la mairie découvrez en avant-première notre nouveau lieu de vie proposant des maisons et d’appartements. Cette résidence sera animée par une nouvelle placette paysagère avec sa fontaine, son allée douce et ses nombreux commerces.
Disponibles en 4 et 5 pièces, nos maisons sont prêtes à habiter et toutes prolongées d’un jardin privatif, engazonné et clôturé. Nos appartements sont quant à eux disponibles du 2 au 4 pièces avec balcons ou terrasses. Chaque logement bénéficie d’une place de stationnement privative ou d’un garage pour les maisons.
Retrouvez en rez-de-chaussée une écolo-Crèche pour une vie de quartier épanouie. Commerces de proximité, établissements scolaires, complexes sportifs, infrastructures de santé, tous les atouts sont réunis pour un quotidien radieux.
Contactez-nous dès maintenant pour profiter du meilleur choix et des meilleurs prix.

