Prix
155 000€
Type
Appt. au 1er
Pièces
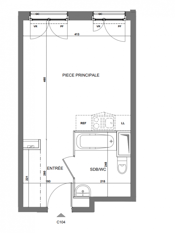
Studio
Surface
27.85 m²
Exposition
Sud-Est
Ville
Mantes-la-Ville (78200)
Livraison
3ème trimestre 2026
Informations
01 81 80 39 10

Présentation du programme "Programme neuf Mantes-la-Ville (78200)"

Dernières opportunités à Mantes-la-Ville ! Venez visiter et vous projeter dans notre appartement décoré ! Cette nouvelle adresse se déploie au cœur d'un quartier résidentiel, à proximité des commerces et services du quotidien pour vous offrir la possibilité de tout vivre à pied !Profitez de cet emplacement de qualité, à seulement 600 m* de la gare Mantes-Station qui accueillera prochainement le RER E et vous permettra de rejoindre le quartier d'affaires de La Défense en seulement 40 min. Les établissements scolaires (de la maternelle au lycée), le marché couvert de Mantes-la-Ville, les boulangeries, les pharmacies et la salle de sport se trouvent tous dans un rayon de 800 m* autour de la résidence. La résidence est composée de beaux appartements déclinés du studio au 5 pièces. Dotés de tout le confort du neuf, certains appartements bénéficient d'une double orientation pour assurer une belle luminosité toute l'année. La plupart des logements s'ouvrent sur un espace extérieur, qu'il s'agisse d'un jardin privatif, d'un balcon ou d'une vaste terrasse en attique. Les habitants de la résidence pourront, également, profiter d'une magnifique terrasse végétalisée accessible en toiture. Pour garantir un confort unique et des performances énergétiques à l'ensemble des logements, cette nouvelle adresse répond aux labels les plus exigeants de la RE2020. Contactez-vite un de nos conseillers pour découvrir tous nos appartements neufs à MANTES-LA-VILLE et concrétiser votre projet immobilier !

Autres logements Studio du programme "Programme neuf Mantes-la-Ville (78200)"

Disponibilité Prix Genre Pièces Surface Étage
Voir
Optionné
160 000€ Appt. Studio 28.66m2 0-RDC
DO NOT CLICK