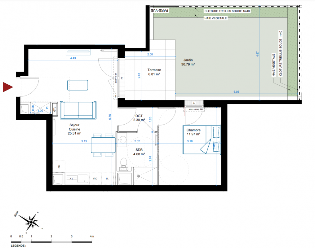
196 999€
Appt. au 0-RDC
T2
44 m²
Nord-Est
Mantes-la-Ville (78200)
3ème trimestre 2028
01 81 80 39 10
Présentation du programme "Opaline"
GRAND LANCEMENT dès le 6 MARS à Mantes-la-Ville (78), Profitez de nos offres de lancement et devenez propriétaire d'un appartement neuf ! Au croisement de l'avenue Jean Jaurès et du boulevard Roger Salengro, découvrez notre future réalisation contemporaine. A seulement 35min de Paris, Mantes-la-Ville séduit par son accessibilité, ses commerces, ses établissement scolaires et ses espaces verts.La ville bénéficie d'une desserte efficace grâce à la ligne J du Transilien et bientôt au RER E (Eole). Votre future adresse se trouve au coeur d'un quartier vivant et dynamique, en lisière de la ZAC Mantes Université, à proximité immédiate d'infrastructures sportives, vous pourrez profiter d'équipements publics, de commerces, d'une école de musique, l'IUT et l'Institut supérieur d'enseignement industriel et de la Gare (10min à pied), offrant ainsi un cadre attractif. Vous pourrez également profiter du vieux centre de Mantes-la-Jolie, tout proche. Composée d'appartements lumineux et confortables, du studio au 5 pièces, la réalisation a été conçue selon la norme RE2020 seuil 2025 pour garantir des performances énergétiques optimales. Pour votre confort il bénéficie tous d'espaces extérieurs (jardins, balcons, terrasses) et de prestations soignées. Un projet en co-promotion avec Habitat & Commerce.
Autres logements T2 du programme "Opaline"
| Disponibilité | Prix | No | Genre | Pièces | Surface | Étage | Disponibilité | Prix | ||
|---|---|---|---|---|---|---|---|---|---|---|
| Voir | Optionné | 181 999€ | 2103 | Appt. | T2 | 41m2 | 1er | Optionné Mais pas encore vendu 😉 | 181 999€ | Voir |
| Voir | Optionné | 187 000€ | 2105 | Appt. | T2 | 43m2 | 1er | Optionné Mais pas encore vendu 😉 | 187 000€ | Voir |
| Voir | Disponible | 190 000€ | 2205 | Appt. | T2 | 43m2 | 2ème | Disponible | 190 000€ | Voir |
| Voir | Disponible | 190 999€ | 2209 | Appt. | T2 | 44m2 | 2ème | Disponible | 190 999€ | Voir |
| Voir | Disponible | 190 999€ | 2406 | Appt. | T2 | 42m2 | 4ème | Disponible | 190 999€ | Voir |
| Voir | Disponible | 193 000€ | 2007 | Appt. | T2 | 44m2 | 0-RDC | Disponible | 193 000€ | Voir |
| Voir | Disponible | 193 000€ | 2305 | Appt. | T2 | 43m2 | 3ème | Disponible | 193 000€ | Voir |
| Voir | Disponible | 193 999€ | 2309 | Appt. | T2 | 44m2 | 3ème | Disponible | 193 999€ | Voir |
| Voir | Disponible | 210 000€ | 2004 | Appt. | T2 | 46m2 | 0-RDC | Disponible | 210 000€ | Voir |
| Voir | Disponible | 211 999€ | 2404 | Appt. | T2 | 43m2 | 4ème | Disponible | 211 999€ | Voir |
| Voir | Disponible | 214 000€ | 2403 | Appt. | T2 | 43m2 | 4ème | Disponible | 214 000€ | Voir |