352 607€
Appt. au 2ème
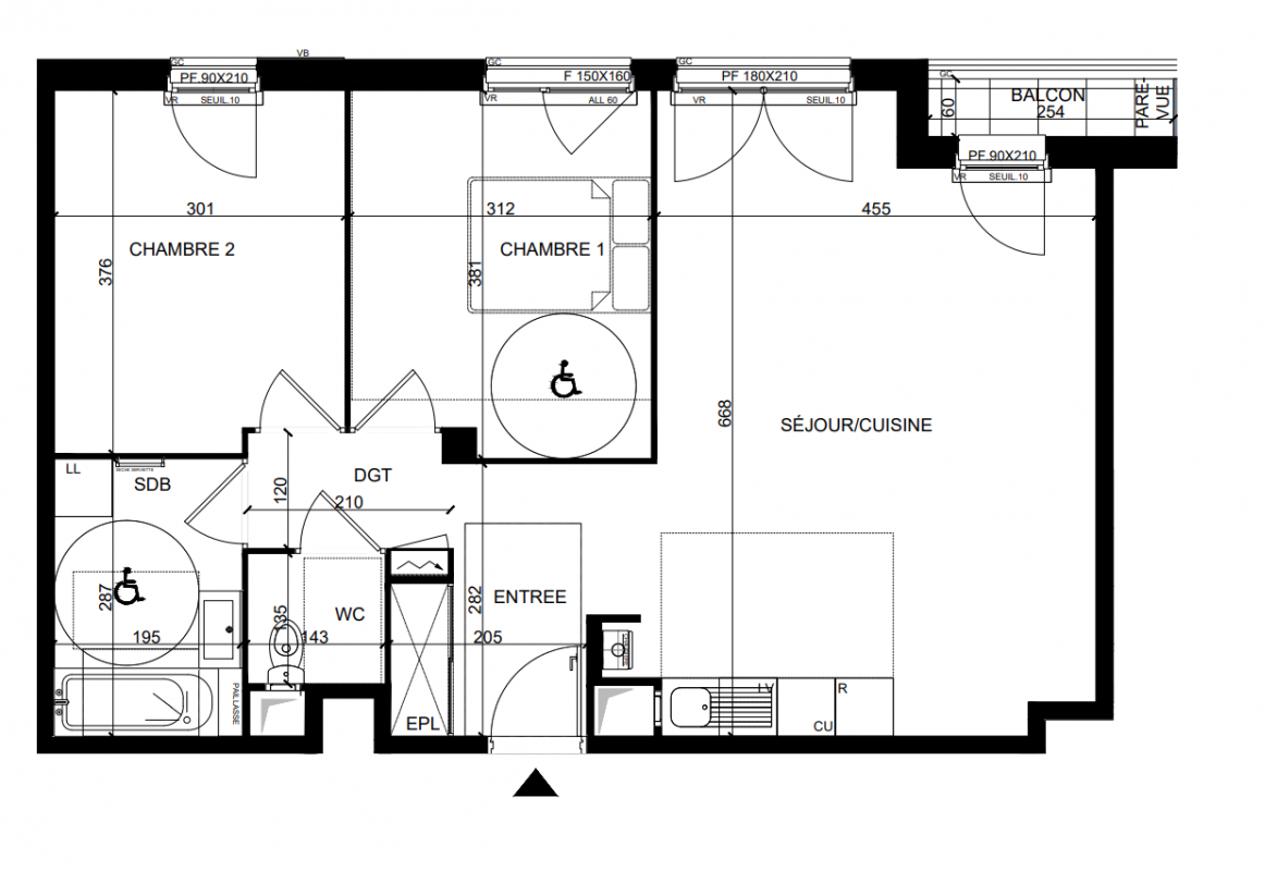
T3
67.38 m²
-
Poissy (78300)
4ème trimestre 2028
01 81 80 39 10
Présentation du programme "LISIERE DES LOGES"
GRAND LANCEMENT LE 25 AVRIL ! Frais de Notaire offerts + Remise de 3 000 euros par pièce *
À Poissy, au 10-12 avenue de Pontoise, découvrez Lisière des Loges, un programme immobilier neuf en TVA 5,5 %, offrant une réelle opportunité d'accession à la propriété à proximité de Paris. Cette résidence à taille humaine propose 30 logements du 2 au 4 pièces avec 45 places de stationnement sécurisées et un grand local à vélo, un confort rare sur le secteur.
Les appartements, majoritairement des 3 pièces adaptés à la vie familiale, bénéficient pour la plupart de doubles orientations, favorisant la luminosité naturelle tout au long de la journée. Certains logements profitent de vues dégagées sur des espaces verts (stade), sans vis-à-vis direct.
Un emplacement pratique et connecté : Gare de Poissy (RER A et Transilien J) permettant de rejoindre Paris et La Défense - Accès rapide aux axes A13 / A14 - Arrêt de Bus à 2 minutes à pied - Commerces de proximité accessibles à pied (boucherie, épicerie, supermarché...).
Un quotidien facilité : Écoles, collèges et lycées à proximité - Équipements sportifs immédiats (stade, tennis, piscine) - Proximité de la forêt de Saint-Germain-en-Laye.
Des prestations fonctionnelles : Résidence sécurisée (digicode, vidéophone) - Stationnement en sous-sol et en rez-de-chaussée - Local à vélos avec accès indépendant - Construction conforme à la RE2020.
Grâce à la TVA réduite et aux frais de notaire offerts pour les 5 premiers réservataires, ce programme constitue une solution idéale pour un premier achat ou un investissement en Île-de-France.
Contactez-nous dès maintenant au 01 87 522 522 pour plus d'informations et étudier votre projet immobilier.
Autres logements T3 du programme "LISIERE DES LOGES"
| Disponibilité | Prix | No | Genre | Pièces | Surface | Étage | Disponibilité | Prix | ||
|---|---|---|---|---|---|---|---|---|---|---|
| Voir | Disponible | 358 066€ | 52 | Appt. | T3 | 62.2m2 | 5ème | Disponible | 358 066€ | Voir |
| Voir | Disponible | 346 464€ | 17 | Appt. | T3 | 65.34m2 | 1er | Disponible | 346 464€ | Voir |
| Voir | Disponible | 352 265€ | 26 | Appt. | T3 | 65.34m2 | 2ème | Disponible | 352 265€ | Voir |
| Voir | Disponible | 356 929€ | 36 | Appt. | T3 | 65.34m2 | 3ème | Disponible | 356 929€ | Voir |
| Voir | Disponible | 358 066€ | 46 | Appt. | T3 | 65.34m2 | 4ème | Disponible | 358 066€ | Voir |
| Voir | Disponible | 375 469€ | 25 | Appt. | T3 | 65.73m2 | 2ème | Disponible | 375 469€ | Voir |
| Voir | Disponible | 381 270€ | 35 | Appt. | T3 | 65.73m2 | 3ème | Disponible | 381 270€ | Voir |
| Voir | Disponible | 384 796€ | 45 | Appt. | T3 | 65.73m2 | 4ème | Disponible | 384 796€ | Voir |
| Voir | Disponible | 369 668€ | 16 | Appt. | T3 | 65.73m2 | 1er | Disponible | 369 668€ | Voir |
| Voir | Disponible | 341 915€ | 24 | Appt. | T3 | 66.67m2 | 2ème | Disponible | 341 915€ | Voir |
| Voir | Disponible | 352 265€ | 34 | Appt. | T3 | 66.67m2 | 3ème | Disponible | 352 265€ | Voir |
| Voir | Disponible | 356 929€ | 44 | Appt. | T3 | 66.67m2 | 4ème | Disponible | 356 929€ | Voir |
| Voir | Disponible | 340 664€ | 15 | Appt. | T3 | 66.67m2 | 1er | Disponible | 340 664€ | Voir |
| Voir | Disponible | 343 052€ | 22 | Appt. | T3 | 67.04m2 Le bon plan | 2ème | Disponible | 343 052€ | Voir |
| Voir | Disponible | 349 991€ | 32 | Appt. | T3 | 67.04m2 | 3ème | Disponible | 349 991€ | Voir |
| Voir | Disponible | 363 867€ | 42 | Appt. | T3 | 67.04m2 | 4ème | Disponible | 363 867€ | Voir |
| Voir | Disponible | 343 052€ | 33 | Appt. | T3 | 67.38m2 | 3ème | Disponible | 343 052€ | Voir |
| Voir | Disponible | 349 991€ | 43 | Appt. | T3 | 67.38m2 | 4ème | Disponible | 349 991€ | Voir |
| Voir | Disponible | 340 664€ | 14 | Appt. | T3 | 67.38m2 | 1er | Disponible | 340 664€ | Voir |
| Voir | Disponible | 416 076€ | 54 | Appt. | T3 | 69.14m2 | 5ème | Disponible | 416 076€ | Voir |
| Voir | Disponible | 381 270€ | 53 | Appt. | T3 | 69.27m2 | 5ème | Disponible | 381 270€ | Voir |
| Voir | Disponible | 334 863€ | 11 | Appt. | T3 | 64.62m2 | 1er | Disponible | 334 863€ | Voir |