Prix
276 000€
Type
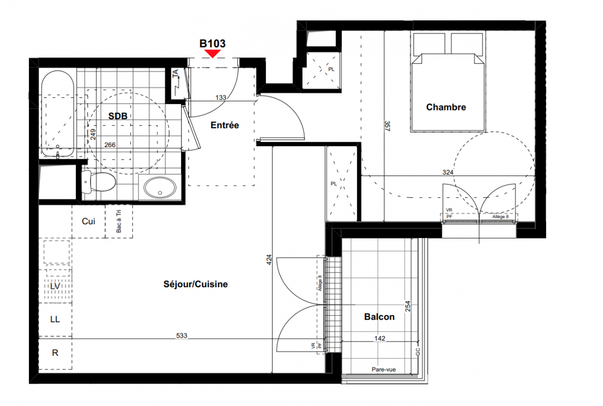
Appt. au 1er
Pièces
-
Surface
42.45 m²
Exposition
Est
Ville
Villennes-sur-Seine (78670)
Livraison
4ème trimestre 2026
Informations
01 81 80 39 10

Présentation du programme "RÉSIDENCE DES COTEAUX"

Appelée autrefois « la Perle des Rivages » Villennes-sur-Seine est une ville privilégiée qui bénéficie à la fois d’un environnement naturel d’exception et d’une situation géographique stratégique. Paris, à 30 kilomètres, et les grands centres d’activités de l’ouest parisien sont rapidement accessibles par la route (A 13 et A 14) mais également grâce à un bon réseau de transports en commun (Ligne J, futur RER E, bus). Ainsi la ville séduit de plus en plus de citadins à la recherche d’un nouvel art de vivre. Il suffit en effet de se rendre sur la place de la mairie, sous la halle un jour de marché, de se promener le long des berges aménagées de la Seine ou de se retrouver dans une guinguette pour succomber à son charme. Au quotidien les Villennois profitent d’écoles, de nombreux commerces, d’une grande zone commerciale, d’un golf réputé et d’une offre culturelle et sportive innovante.

Autres logements - du programme "RÉSIDENCE DES COTEAUX"

Disponibilité Prix Genre Pièces Surface Étage
Voir
Disponible
263 000€ Appt. - 39.75m2 0-RDC
Voir
Disponible
447 000€ Appt. - 83.9m2 1er
Voir
Disponible
243 000€ Appt. - 35.05m2 0-RDC
DO NOT CLICK