Prix
168 000€
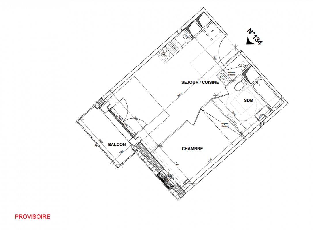
Type
Appt. au 3ème
Pièces
T2
Surface
37.23 m²
Exposition
Sud
Ville
Dozulé (14430)
Livraison
4ème trimestre 2027
Informations
01 81 80 39 10

Présentation du programme "Le Clos du Cheval Blanc"

Découvrez en avant-première la nouvelle résidence signée Vianova au coeur d'une charmante ville normande. À Dozulé, devenez propriétaire de votre appartement neuf de 2 ou 3 pièces, prolongé par un balcon ou par un jardin privatif. Cette résidence est située à deux pas du centre-ville, des commerces et des écoles. Un emplacement idéal pour devenir propriétaire de votre logement.

Autres logements T2 du programme "Le Clos du Cheval Blanc"

Pas de logements disponibles
DO NOT CLICK