Prix
134 500€
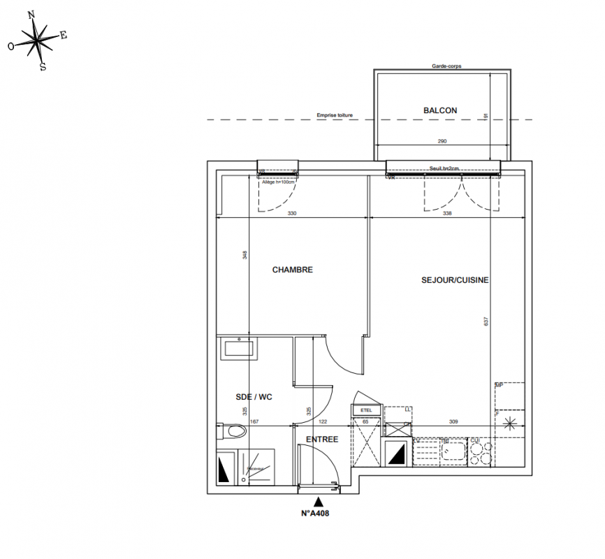
Type
Appt. au 4ème
Pièces
T2
Surface
42.4 m²
Exposition
Nord
Ville
Périgueux (24000)
Livraison
2ème trimestre 2027
Informations
01 81 80 39 10

Présentation du programme "CARRE SAINT GEORGES"

Associez tout l’art de vivre périgourdin avec le confort de l’immobilier neuf signé Vianova. À 15 min à pied du cœur historique de Périgueux et à proximité de toutes les commodités, cette résidence propose des appartements prolongés par une surface extérieure. D’une habitabilité parfaite conjuguant espace, lumière et confort, ils jouent la carte du bien-être au quotidien. Une adresse attractive pour vivre comme pour investir.

Autres logements T2 du programme "CARRE SAINT GEORGES"

Disponibilité Prix Genre Pièces Surface Étage
Voir
Disponible
146 500€ Appt. T2 41.37m2 2ème
Voir
Disponible
134 500€ Appt. T2 41.32m2 2ème
Voir
Disponible
142 500€ Appt. T2 41.32m2 2ème
DO NOT CLICK