242 850€
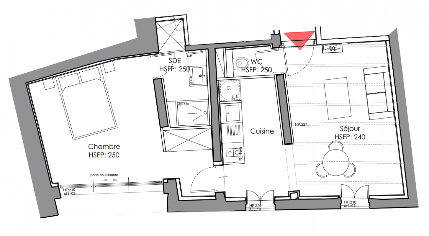
Appt. au 1er
T2
39 m²
-
Périgueux (24000)
3ème trimestre 2029
01 81 80 39 10
Présentation du programme " L'HOTEL DE SULLY "
Au coeur du secteur sauvegardé de Périgueux, à seulement quelques mêtres de la Cathédrale Saint-Front, cet Hôtel Particulier du XVIème siècle bénéficie d'un emplacement exceptionnel. L'Hôtel de Sully incarne le raffinement architectural de la Renaissance à Périgueux. Ancienne demeure d’un marchand drapier fortuné, il témoigne de l’importance économique et du rayonnement commercial de la ville à cette époque. S’ouvrant sur une place piétonne et arborée, le bâtiment s’inscrit dans un environnement patrimonial préservé, offrant un cadre rare au sein du centre historique.Un emplacement rare, au coeur du secteur sauvegardé :
Commerces, services, transports et écoles à pied
Cathédrale Saint-Front : 150 m – 2 min à pied
Campus Périgord : 3,3 km – 11 min en vélo
Gare SNCF : 1,3 km – 6 min en vélo
Parking Place Mauvard : 140 m – 2 min à pied
Parking des quais : 300 m - 2 min à pied
Parc Gamenson : 1,6 km – 6 min en vélo
Aéroport : 8 km – 18 min en voiture
Ce programme est éligible à différents dispositifs, ci-dessous les modalités des ADF :
Loi Malraux ou Denormandie optimisé : 3 ADF (35/35/30)
Déficit foncier : 3 ADF (35/35/30) ou 4 ADF (35/25/25/15)
Autres logements T2 du programme " L'HOTEL DE SULLY "
| Disponibilité | Prix | No | Genre | Pièces | Surface | Étage | Disponibilité | Prix | ||
|---|---|---|---|---|---|---|---|---|---|---|
| Voir | Disponible | 251 150€ | C12 | Appt. | T2 | 41m2 | 0-RDC | Disponible | 251 150€ | Voir |
| Voir | Disponible | 235 850€ | A21 | Appt. | T2 | 39m2 | 1er | Disponible | 235 850€ | Voir |
| Voir | Optionné | 207 025€ | A22 | Appt. | T2 | 33.5m2 | 1er | Optionné Mais pas encore vendu 😉 | 207 025€ | Voir |
| Voir | Disponible | 179 350€ | B22 | Appt. | T2 | 29m2 | 1er | Disponible | 179 350€ | Voir |
| Voir | Optionné | 174 200€ | C21 | Appt. | T2 | 28m2 | 1er | Optionné Mais pas encore vendu 😉 | 174 200€ | Voir |
| Voir | Disponible | 248 000€ | A31 | Appt. | T2 | 40m2 | 2ème | Disponible | 248 000€ | Voir |
| Voir | Disponible | 182 545€ | B33 | Appt. | T2 | 30.3m2 | 2ème | Disponible | 182 545€ | Voir |
| Voir | Disponible | 174 700€ | C31 | Appt. | T2 | 28m2 | 2ème | Disponible | 174 700€ | Voir |
| Voir | Disponible | 240 850€ | C32 | Appt. | T2 | 39m2 | 3ème | Disponible | 240 850€ | Voir |
| Voir | Disponible | 243 925€ | A41 | Appt. | T2 | 39.5m2 | 3ème | Disponible | 243 925€ | Voir |