Prix
160 900€
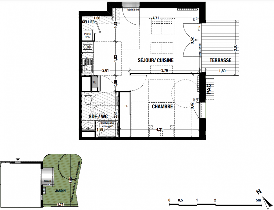
Type
Appt. au 0-RDC
Pièces
T2
Surface
43 m²
Exposition
-
Ville
Belin-Béliet (33830)
Livraison
4ème trimestre 2026
Informations
01 81 80 39 10

Présentation du programme "EPURE"


Pièces sèches : Parquet stratifié
Pièces humides : Carrelage (45x45) avec sous couche acoustique + Faïence à hauteur d’huisserie au pourtour Douche/Baignoire
Menuiserie ext : PVC
Volet roulant électrique dans le salon
Bloc porte métallique 1 vantail ou bloc porte en bois 1 vantail. Serrure 3 points A2P 1 étoile. Microviseur. Joint isophonique.
Meuble vasque + Miroir + Bandeau lumineux
Un placard aménagé pour les T2, deux placards aménagés pour les T3.
Chauffage et production d’eau chaude saniataire : individuelle. Electricité par pompe à chaleur ou ballon thermodynamique selon plan

Autres logements T2 du programme "EPURE"

Disponibilité Prix Genre Pièces Surface Étage
Voir
Disponible
159 300€ Appt. T2 45.4m2 0-RDC
DO NOT CLICK